ARCHITECTS
Z_Lab
LOCATION
Seosan-si, South Korea
CONSTRUCTION
Zinyong Construction
AREA
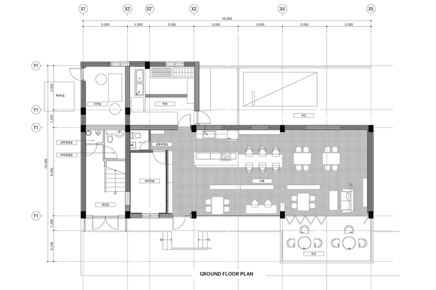
422 m²
YEAR
2012
PHOTOGRAPHS
Kim Jae-kyeong, Woo Jong-deok
FUNITURE DESIGN
Kaareklint
FUNITURE DESIGN
furnigram
SITE AREA
459.15㎡
FLOOR AREA RATIO
37.39%
CATEGORY
Hotels, hostel, adaptive reuse
BUILDING TO LAND RATIO
91.97%
Text description provided by architect.
Established as a famous local attraction more than twenty years, ‘Zero Garden(Local restaurant)’ has been called for a new function and role in the changing society.
We were reborn as a unique space by incorporating new elements while maintaining a valuable history.
Graphic and web design, marketing, operations are all carried up in a single integrated design concept, not just limited to architecture or interior design.
Remodeling is a process that gives new life to the building in addition to a new design and program the old buildings. So also the story called renovation.
ZEROPLACE’ was party to bring some new energy to space while preserving as much as possible to the point of existing ones element.
We also vitalized exsiting design and program. Because ‘ZEROPLACE’ cocerns the social needs in the future.
Naming of the ‘ZEROPLACE’ was derived from the sense of "put down everything and back to the zero. The purpose of this work is making a shelter for the creator who passionately think and work and need some rest.
The concept of this project is ‘Minimal & Vintage’. As the meaning of ‘ZEROPLACE’ Minimalism means emptiness, temperance, prioritizing relationship between people and nature.
Vintage means that we distinguish preservation from the things that need the renovation to keep the building antique.
We secured the feeling of openness by lowing the window ‘ZEROPLACE’s furniture and objet are completed by collabolation with 'creative domestic designer' ‘ZEROPLACE’ keeps collabolation with the domestic designer, and keep discovering talented creator.





































