Graham’s 1890 Lodge Rehabilitation
ARCHITECTS
Luis Loureiro, P06-Nuno Gusmão
LOCATION
Vila Nova De Gaia, Portugal
ENVIRONMENTAL GRAPHIC DESIGNER
Nuno Gusmão, P-06 Atelier
DESIGN COLLABORATORS
Giuseppe Greco, Joana Proserpio
ARCHITECTURE COLLABORATORS
António Figuereido, Filipa Santos, Luís Caldeira, Vitor Pinho, Txema Retana, Gemma Salas
Text description provided by architect.
The renovated Lodge is called the ‘1890 LODGE’. This was the year in which the then owners (the Scottish Graham’s family) built a much larger lodge to replace a previous building which their successful expansion had outgrown, since founding the company some 70 years earlier.
The Graham’s Lodge has been open to visitors since 1993, It featured a tasting area where visitors could enjoy Port, and an adjoining shop and wine bar.
On arrival at the lodge, visitors were given a guided tour of the working lodge, where 3,500 casks (or ‘pipes’, in Port language) of maturing Port are stored.
The visit also included the cool, dark Vintage ‘bins’ (wine cellars) where older Graham’s Vintage Ports are kept (some Ports, such as the 1868 still lie there).
In early 2011, as the numbers of visitors inexorably grew, year on year — benefitting no doubt from the fact Porto was (and is) growing in popularity as a tourist destination —
The Symington family decided to invest in the renovation of the lodge, not just to accommodate the ever increasing numbers of visitors, but also — and more importantly — to provide them with a much more interesting experience during their visit.
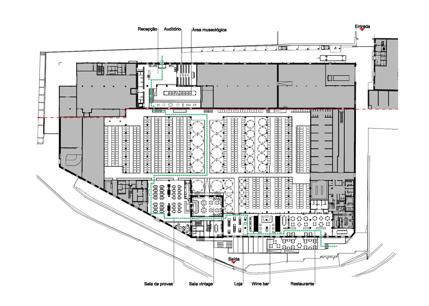
The 1890 Lodge will provide visitors with a much more comprehensive and rewarding experience: 1). Visitors enter by a roomy new reception area where they will be checked in and then shown into an auditorium where a short film will introduce them to Graham’s.
2). Graham’s Museum: adjoining the reception hall, there is a brand new Graham’s Museum which tells the visitor the story of the Symington family’s long involvement in Port, as well as the history of Graham’s; the underlying theme is, “The Story of Two Port Families: the Graham’s and the Symingtons”.
The museum is relatively compact but is beautifully laid out and includes some very attractive artefacts on display. For example, there is a set of calibrating measures, dating from 1770 that were used both in the Douro Quintas and in the Lodges in Gaia.
Besides artefacts, documents, objects, etc linked to the Port trade as a whole, as well as to the Graham and Symington families, there is also a sequential display of Port’s journey from vineyard to bottle, from the Douro Valley to the Gaia Lodges.
The display table (15 meters/45 feet long) in the museum displays a large selection of historically relevant documents, wine order books, certificates and other items pertaining to both the Symington family and Graham’s.
At the lower level of the museum, larger objects are on display. Through the large arches, the thousands of maturing casks of Port are visible to visitors.
3). One level down from the museum, visitors will enter the lodge proper. We have clean all bad infrastructures retraced what the original 19th century Lodge was like, reintroducing more of the earth floors and rebuild all infrastructures .
Lodge floors were traditionally left with an earth surface so that they could be hosed with water in the hotter summer months in order to keep the ambient temperature as cool as possible.
4). Following the guided tour through the Lodge, visitors will then be shown into the renovated tasting room, where they can take a load off their feet to taste a range of Graham’s Ports. The renovation of this area is underway and temporary facilities are in place to cater for visitors meanwhile.
5). The ‘Vintage Room’: for a more exclusive and complete experience, the more discerning visitor can choose to access the Vintage Room, where a different level of Port tastings are provided in a more tranquil and comfortable atmosphere. The beautifully decorated room, will allow the visitor to taste premium and super premium Graham’s Ports.
6). Visitors exiting either the tasting room or Vintage Room will then be shown into the all new shop. The shop is set very much in the old Lodge building, adjoining the lodges main stone façade,
whose large windows light up the shop with natural light, as well as offering magnificent views over the twin cities of Porto and Gaia, and the River Douro.
The design of the new shop is much more interactive and ‘hands-on’, there is no counter separating customers from the bottles, as was previously the case.
7). At the end of the visit costumers could enjoy a light meal in the completely new wine bar, or better still, a full meal in the new Restaurant. The setting is very much the Lodge ambience itself.
To one side, once sat down at their table, guests can view the endless rows of pipes (separated from the restaurant by a discreet metal and glass screen).
On the opposite side there is the large bulk of the Lodge’s granite walls. Original large iron columns support the Riga pine timbers and roofing.
In short, a very atmospheric surrounding in which to enjoy meals with some wonderful wines. The restaurant will also feature a very attractive outdoor seating area, on the terrace adjoining the main Lodge façade. This terrace has one of the best views of Gaia and Porto.
Given the Graham’s Lodge location on very high ground (the vast majority of Port Lodges are built along the river front), it commands sweeping views of the old medieval quarters of Porto and Gaia, as well as the iconic Dom Luis ‘double-decker’ bridge over the Douro River. This view is spectacular both during the day and at night, when all the city’s beautiful landmarks are impressively floodlit.
































