ARCHITECTS
Mjölk Architekti
CATEGORY
Cultural Architecture, Library
PHOTOGRAPHS
Barbora Kuklíková
LOCATION
Zadní Třebaň, Czech Republic
YEAR
2012
COSTS
4.500,- E
COLLABORATORS
Daniel Rohan, Jan Vondrak, Daniel Baudis, Jan Mach, Lukas Holub, Pavel Nalezeny a Jakub Adamec
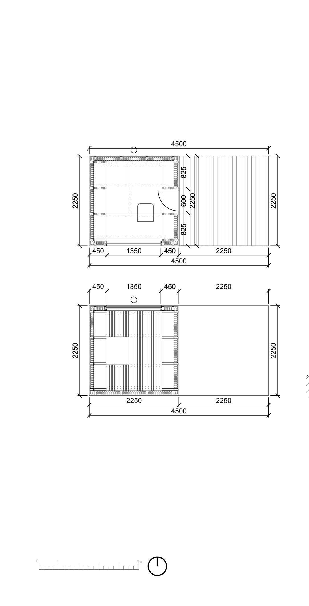
The library is located in Zadní Třebáň/CZ/. We built it on our own.
The structure is made of wood and plywood.
The supporting frame consists of the library itself, the facade is covered with fiberglass.
On the first floor is situated reading room with fireplace, sleeping on the the second floor as well as looking around the landscape.
The Library has an opening roof, so the top of the house can be used as an observatory.
Completion of the library we had planned for the end of last year, but in November 2011 due to technical problems the library burned down.
It took six months to have it repaired, but today, the library is back for its happy owner.


















