ARCHITECTS
Cité Arquitetura
LOCATION
Queimados, Brazil
AREA
9086 m²
YEAR
2016
PHOTOGRAPHS
Alessandro Giraldi
MANUFACTURERS
Portinari, Prodec
PROJECT MANAGER
Leticia Burkardt, Lúcia Andrezo
TEAM
Daniel Osório, Beatriz Oliveira, Luiz Felippe Calçado, Thiago Marques, Beatriz Aguiar, Zander Vasques, Felipe Andrade, Thiago Pessoa
STRUCTURE
Vertiko
INSTALLATION
OF Caran
FIRE CONTROL
Kitfire
LANDSCAPE
Harumi e Zayas Paisagismo
INTERIOR
Jaime Morais
AIR CONDITIONING
Ar Frio
RENDERS
Vertex 3D
CITY
Queimados
CLIENT
Zoneng Engenharia
COUNTRY
Brazil
Text description provided by architect.
Important industrial hub located in a strategic setting and future Intermodal Railway Center of Rio de Janeiro, Queimados is a rapidly developing city.
Like many untapped areas of the Metropolitan Region, it now has a demand for larger and better-quality enterprises.
The arrival of a hotel development of the size of Premier Flat is fundamental to anchor the growth that the city is experiencing.
After going through some hotel typologies and required morphological elements – services and common areas in the lower part of the building and rooms located within the tower, on the upper floors – the strategy was to avoid fragmentation of these two volumes, taking into consideration the challenge of creating a unique image for the whole complex.
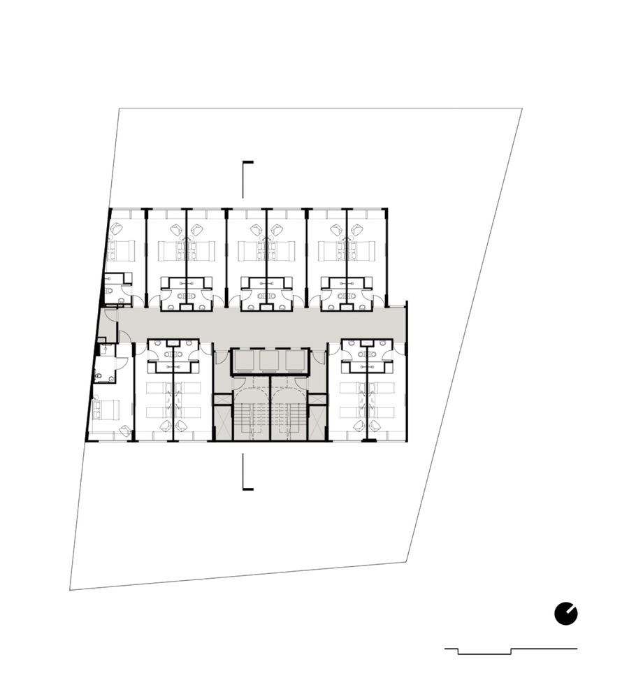
The final project houses a lobby, restaurant, SPA and Business Center in the lower level and 156 rooms in total, combining the elements through a unique materials’ choice.
The scale of compositional elements, such as frames, vertical profiles and marquees, is also fundamental for achieving the desired effect.
The proposed solution determines a new scale for the windows of the rooms, creating vertical groups with three stories high each and establishing, in this way, the direct dialogue with the brise-soleils of the lower windows.
Premier Flat arrives in Queimados as a visual landmark in the landscape and also as a new building standard for the area, acting as a starting point for future endeavors aimed at qualifying the city.
























