CATEGORY
Houses
LOCATION
Kyunggi, South Korea
ARCHITECTS
Farming Architecture
AREA
252 m²
MEP ENGINEER
I-Ecoeng
PHOTOGRAPHS
Kyung Roh
CONSTRUCTION
The Barn construction co.
STRUCTURAL ENGINEER
HI Structural Engineers
MANUFACTURERS
Daelim Bath, Limas, Eagon, Keangnam
YEAR
2017
Text description provided by architect.
Poly house was built for a couple with elementary school-age children. Like all families today, they spend a considerable amount of their time away from home, at school or at work. Nonetheless, their living space forms a stage where everyday life patterns are repeated, and this everyday life is an inseparable, organic whole.
When designing a dwelling, sharing time and space and respecting privacy are contradictory yet essential rules. Within this, we always seek new stories and look forward to small pleasures and deviations as if they were events in themselves.
Poly house poses the question of how a fixed architectural structure can respond to the patterns and desires of the occupants' constantly changing lives, and suggests an answer.It is also a process that shows a new interpretation of the functions and aesthetics of the ideal home.
Poly house has indeterminate “gaps” between personal and family space. These gaps are margins between individuals and between spaces, and are possibilities that connect living space and the lives of occupants.
The complex conditions of the site, including the position of the entryway, the sloping land with a maximum height difference of six meters and the building coverage ratio of just 20%, provided clues for finding the optimum design.
Half of the entire building is buried in the ground, while the other half reveals itself above the surface of the yard.Poly house makes active use of ambivalent spaces where interior meets exterior or where such boundaries are inverted.
This raises the contact surfaces inside the house and minimizes visual severance between the inside and the outside.
In contrast to the simplicity of the form visible from the outside, the irregular elements on the inside create diverse views. Gaps and ambivalent spaces allow users to experience not a flat living environment but an intimate living space.
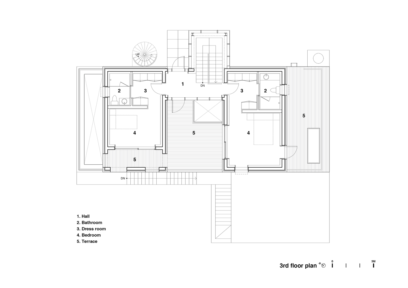
Gaps and margins are more than spaces of experience through which sight lines and wind can pass; they signify psychological distance between members of the family. The entire mass can broadly be divided into service space, family space and personal space.
The lives of the occupants and the relationships between family members permeate these individual spaces as they are. The living room, kitchen, utility room, bathroom and inner courtyard are placed in the family space, while the linear core is a circulatory, open space in the form of a corridor.
Use is made of the minimized boundaries between the kitchen, dining room and living room, where spatial hierarchy changes flexibly according to need. In the upper mass, consisting of private space, the parents' bedroom and children's area are placed independently of each other, ensuring mutual privacy.
Intermediate spaces such as free-standing walls and decking between these spaces maintains psychological privacy. Decking and sunken spaces inserted in here and there sever the space; thus created, these gaps and in-between spaces offer various uses and views.
The pocket spaces on the left and right sides of the building and the small courtyard in the center of the living room put the lower floors in direct contact with the earth, adding ventilation and lighting that could otherwise have been inadequate.
The outer stairs at the front and the spiral staircase in the back yard provide three-dimensional links between the building, the site and the rooftop space. From the outside, Poly house is a solid, square mass, but on the inside it consists of thin layers.
Its various elevations, openings and lines of circulation are like a sponge. Light and air flow unimpeded, while the porous architecture, with flexible boundaries, offers a new alternative to monotonous apartments and other living spaces.
The surrounding environment and lives are projected into the space, so that the house will accumulate neat layers of people and scenery like a frame.






























