ARCHITECTS
Studio_GAON
FINISH
Brick, Zinc roofing
SUPERVISION
Studio_GAON
TRANSLATION
Joowon Moon
BUILDING AREA
80.20 m2
SITE AREA
288 m2
AREA
130 m²
YEAR
2017
LOCATION
Naju-si, South Korea
CATEGORY
Houses
Text description provided by architect.
This house is a residence for a typical family of four: A quiet but charismatic father who is decisive, a cheerful mother who loves to laugh and two energetic children who never stop moving.
The historic city of Naju, where the house is located, flourished in the past, but it was a city that developed based on agriculture.
Lately, many public corporations are moving their headquarters, promoting new homes and commercial facilities, thereby changing the atmosphere of the city.
Originally living in an apartment in Seoul, the family had to move to this city following relocation of the company father works for.
The site is one of the lots planned afresh in the midmost of the planned city, unrelated to the local history or tradition, built upon land that were previously rice paddies and farms.
A scene of artificially divided lots along an artificial street was waiting for us. We always feel a setback with these planned house lots: they crush the trace and ego of the land.
The architect has to be in sync with the rhythm of the land but there is no beat. Designing a house in such a site is to sing a song without accompaniment or to dance with ears closed.
It is quite awkward. Nevertheless a scheme is needed, so we have to lean on our imagination. How helpful imagination is to an architect in distress.
A family of four – two parents and children of two- has been the model for Korean housing policy for a long period. But now, traditional concept of family is becoming faint and new concept of family is replacing it.
The golden age of three generation family has gone and now we have single households, Dinkies, one-parent families and many other kinds. On that note, we thought that we are building a very standard, prototype house in a city where is no context for reference.
The client, decisive man he is, made the name of the house in advance: The house of Juckdang(적당) and Jakdang(작당). We interpreted that ‘Juckdang’ means being moderate and not to overflow, while ‘Jakdang’ means conducting fun activities among the family.
We started to envision the house with these two simple but extraordinary words. A two-story residence a bit larger for the family of four became the scheme. The first goal was to make various joyful spaces for the young brother and sister.
We judged that they needed a house with discreet distance between family members; a house that children can live in a same room with their parents when they are young, but then is flexible enough so they have independent space as they grow up.
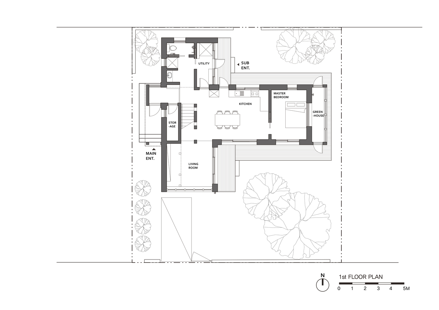
We made a living room opening up to the second floor and the main space -kitchen and dining room- connected to the master bedroom and greenhouse. Considering the efficiency of housekeeping, the bathroom, laundry, utility rooms revolve around the entrance.
By lowering the living room floor level than the dining room, the space becomes more stereoscopic. The children can hide, roll, lie, and wave their feet while reading books in the bookcase between the landing spaces.
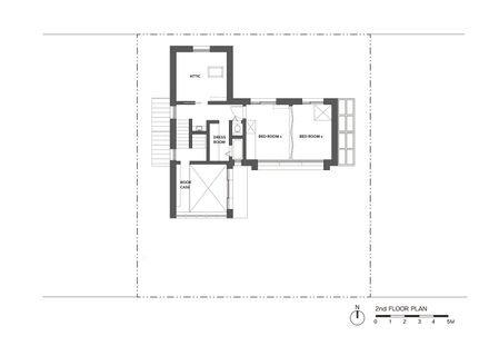
On the second floor, we designed a spacious bedroom which will split as the children grow up. Making the best use of gable roof, the rooms are formed with various triangular sections. Playful spaces are everywhere in the house for the children; they can even reach the first floor roof attic from the second floor level.
The house becomes a playground and a shelter for the family to gather, listen to music and paint pictures. We pondered over the meaning of family while designing the house for the parents and children, a family unit becoming rare these days.
A house is a peaceful cover for the family to be protected from the wild world outside. Of course, this will not be a house to be handed down from parents to children. Still it will be a house to be remembered by the children, connected to their memory of their parents.































