
Bahia Rodin Museum
AWARDS
1st place in the category "Intervention in the Built Heritage" of the Biennial of Architecture of Quito, 2006; 1st place in the category of Executed Work - Patrimony of the 5th Biennial of Architecture of Brasília, 2006; 1st place at the VII International Biennial of Architecture of São Paulo, 2007; 2nd place at non "Ibero-American prize for the Best Intervention in Works that Involve in Built Heritage", in the category Works larger than 1,000m², organized by the International Center for Conservation of the Heritage - Cicop Argentina and the Central Society of Architects
Text description provided by architect.
Creating the first affiliate out of France of the Rodin Museum in Salvador, state of Bahia, required meeting a number of prerequisites.
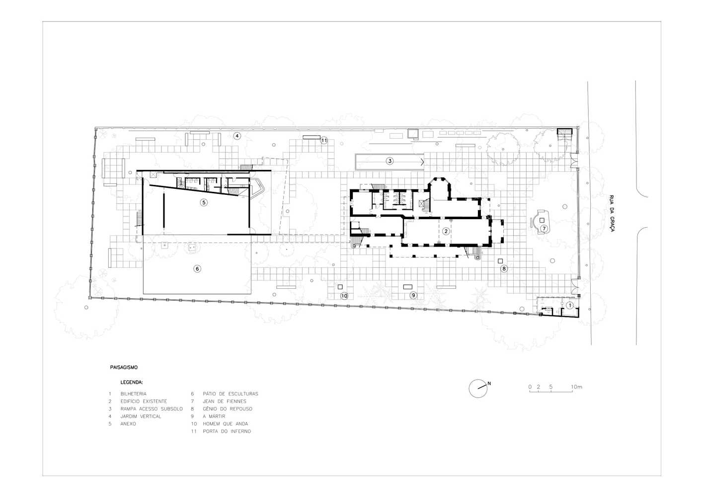
The first was to find a site with cultural relevance to the city and that met all the technical requirements to house about seventy original plaster pieces, part of the collection of the Museum in Paris.
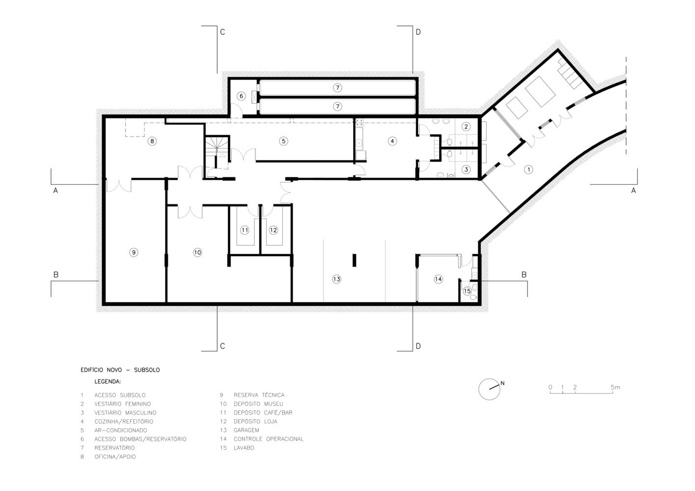
The objective of both the restoration of the building and the new interventions was to provide the necessary infrastructure, adapting the spaces to the activities of the Museum.
Educational activities and reception were located on the ground floor; exhibition areas for the pieces from the Rodin collection in the two floors above; and administrative activities in the attic, restored for this purpose and accessed by a new stairway.
In order to provide a storage area for the Museum’s collection and a place for temporary exhibitions and a coffee-restaurant, the plans called for an annex as big as the main building.
The main solution to offer continuity to the set is represented by the prestressed concrete elevated walkway.
Long spanning, extending towards the new building unsupported, 10 ft high, it shall provide a privileged view of Rodin’s sculpture the gates of hell, to be installed in the garden.
Two buildings, two historical moments that dialogue in a centenarian garden defining a cultural space intended as a meeting point, a place for social interaction that adds value and life to the urban environment.
Dois edifícios, dois momentos históricos que conversam num jardim centenário, definem um espaço cultural que se pretende ponto de encontro e área de convívio, um espaço de agregação de valor e de vida.






































