
University College Ostfold Halden
CATEGORY
University
LOCATION
Halden, Norway
AREA
28000.0 m²
YEAR
2002
ARCHITECTS
Reiulf Ramstad Architects: Reiulf Ramstad Architects, Oslo Norway
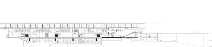
Text description provided by architect.
The key notion of the architectural strategy is the location's natural features and the use of a limited material palette.
The project is situated in an old "culturscape" and special attention is paid to integrate it into its surroundings.
The design is based on simple geometrical prisms, lines and slabs composed into a complex lay-out of rooms and functions.
Critical functions and lines of communication are emphasised and the building expresses a balance of functional efficiency and open perspectives.

T +47 22 808480
Reiulf Ramstad Arkitekter, AS
Josefines gate 7, 0351 Oslo, Norway
















