
Central Library,universided Catolica Del Norte
CENTRAL LIBRARY, UNIVERSIDED CATOLICA DEL NORTE
Marsino Arquitectura
ARCHITECTS
Marsino Arquitectura
AREA
331.696 m²
YEAR
2002
LOCATION
Antofagasta,Chile
CATEGORY
Library
Text description provided by architect.
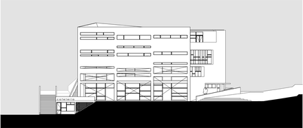
Marsino Arquitectos designed the Central Library for the Universidad Católica del Norte in Chile.
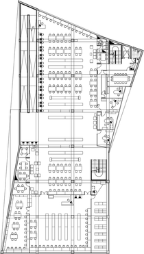
Several access points, circulations and gathering spaces result in a fluid space that fits with current educational methodologies.
The architectural container materializes the gathering in spaces to develop the social and collaborative role of contemporary libraries, distant from the old archive-like approach for libraries.
Its facade consolidates the institutional image of the University, that has been developed as a series of temporary constructions.

T +56 9 99197623
Marsino Arquitectura
Av. El Cerro 179, 7520170 Providencia, Región Metropolitana, Chile
























