
Vilamarina Building
LOCATION
Barcelona, Spain
CATEGORY
Apartments, Shopping Centers
AREA
197000.0 m²
ARCHITECTS
Enric Batlle, Joan Roig, Ricardo Sanahuja, Juan Manuel Sanahuja
YEAR
2003
Text description provided by architect.
The town of Viladecans is situated in the county of Baix Llobregat, in Barcelona province. Originally standing on the Barcelona road, now the C-245, running parallel to the coastline and communicating the towns on the left of the Llobregat delta with those along its edge, it followed a linear development until the 1950s, with the aim of connecting the town centre with those of nearby towns along the C-245.
The population explosion of the 1960s and after, and the implantation of large industrial sites modified this tendency, leading to rapid growth. However, expansion was hampered by the geographical and structural conditions of the setting, on the mountain side by the relief, on the sea side by the layouts of major infrastructures (motorway and railway) and eastwards by the presence of the Riera de Sant Climent watercourse.
Watercourses have hampered the expansion of Viladecans, like most of the towns to the left and around the top of the Llobregat delta (Sant Vicenç, Santa Coloma de Cervelló, Sant Boi, Gavà, Castelldefels, etc.),
Which has historically turned its back on them to the point of converting them into open sewers into which wastewater was drained and rubble piled up. However, in the case of Viladecans, the demographic growth of the late 1990s and early 2000s led the town to rethink the need to bridge the watercourse, which would have to reconsider its role within the town accordingly.
Viladecans therefore took the watercourse as its axis of growth towards the east and as the leading thread of its expansion southwards. Our planning proposal set out to create a system of parks within the town, using empty spaces that had been generated in the process of occupation of the territory. These empty spaces, threaded along the watercourse, became the town’s new open spaces and provided a continuum for pedestrians that had previously been unthinkable.
The general project was based on an interpretation of the watercourse as a natural corridor that connects the agricultural park and the mountainside via the town, creating an urban park and incorporating the open stretches wherever possible, recovering the native vegetation and turning the covered parts into tree-lined walks. Based on the idea of an ecological corridor, the park was designed as a succession of rows of trees of different riverine species along the paths and cycle tracks.
Particular attention was paid to correcting the course of the stream to improve seasonal changes in volume and eliminate the risk of unforeseen flooding, and the watercourse was planted with native species.
The overall arrangement presents a new north-south urban axis and connects the consolidated part of the town with new eastward growth by creating new paths that respect the continuity of the park.
In the final urban stretch of the Riera de Sant Climent, between the old C-245 road and the motorway, the town’s limit with the agricultural park, Viladecans had the opportunity to develop an extensive strip of land parallel to the motorway.
The development unified the reserves of public green space around the watercourse and highlighted two sectors for development: to the west, a residential, commercial and tertiary area, and, to the east, a sector of new industrial and technological development.
The Parc de la Marina emerged as the culmination of the green corridor of the Riera de Sant Climent. The watercourse runs uncovered through the park, generating basins to the sides which, in the event of an increase in volume of flow, provide temporary flood control. The system of trees and paths to the north opens out and infiltrates the park, organizing a variety of routes.
There are two types of paths: one at the general ground level and one that adapts to changes of topography or the construction of walkways, either climbing or crossing the watercourse or adjacent streets.
These changes in topography in the form of dunes serve to create different areas to house the park’s various uses: a natural amphitheatre, a showground, a children’s playground, an aromatic garden, pinewoods and picnic areas.
The park also aims to generate a sustainable hydraulic system that collects and channels rainwater and provides an irrigation system. Runoff is collected by a system of broad conduits which, despite their gently sloping gradient, channel the water to the planned flood control areas and away from the general sewerage.
The idea is to facilitate maximum infiltration of rainwater to the subsoil for reuse as natural irrigation. The park’s general irrigation network is designed to use minimum resources to achieve maximum performance.
The whole park, including the expanses of grass, is watered using a drip system that allows the ground to absorb water, reducing consumption and using wastewater and groundwater, without interrupting its use. Finally, we worked on the design and construction of the residential, commercial and tertiary area situated to the west of the Parc de la Marina.
The Vilamarina sector is situated between Avinguda Germans Gabrielistes, the street that borders the park, and the Carretera de la Vila road, which communicates the centre of Viladecans with the new railway station situated beside the motorway.
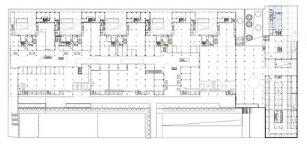
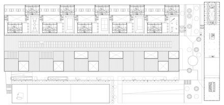
Faced with the criteria of low-density development, zoning and diversity of image that tend to characterize this type of intervention, our proposal sought to construct an urban sector with high density, concentrated uses and, above all, a structural and formal unity that would make the intervention a point of reference. The building was designed with a great prismatic base of three storeys that occupied the entire site.
The objective was to strengthen the link between the centre of Viladecans and the railway station by means of the commercial continuity of the streets that relate the two points, the continuum of residential fabric and the force of a recognisable architectural image.
The primarily commercial ground floor is laid out around the shop and entrance to the dwellings on Avinguda Germans Gabrielistes, which was envisaged as a great pedestrian thoroughfare with the power to relate the whole with the park and the town with the station.
The shopping centre, conversely, was situated adjacent to the Carretera de la Vila road. The mall or central axis was laid out parallel to the street with its main entrances at either end, leading to the railway station and the town centre, and acting as a passage that communicates Viladecans and its station.
The 320 dwellings are distributed in ten blocks of 12 storeys, interrelated on the first and second floors by a strip of duplex apartments over the shop on the avenue, with the aim of bringing new life to the street and revitalizing the front overlooking the park.
The dwellings in the tower blocks (three per landing) are laid out facing east and west, prioritizing views of the park over the south-facing orientation with views of the agricultural park in the delta. The guiding idea of unifying the whole led us to use just two materials in the façade, for both the commercial base and the tower blocks.
We chose a very bright, glazed white brick for the blind walls and dark porcelain stoneware for the west-facing façade with its horizontal strip windows and the east façade with its French windows overlooking the park.
The complex functions as a neighbourhood with all the necessary facilities and services, at the same time joining up with the old town of Viladecans, continuing the town’s growth towards the new transport systems.












































