
Apartment House In Tatari street
APARTMENT HOUSE IN TATARI STREET
JVR Arhitektuuribüroo
ARCHITECTS
JVR Arhitektuuribüroo
AREA
2820.0 m2
YEAR
2004
LOCATION
Tallinn, Estonia
CATEGORY
Apartments
Text description provided by architect.
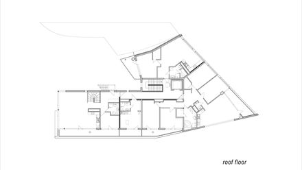
Number of flats: 24.
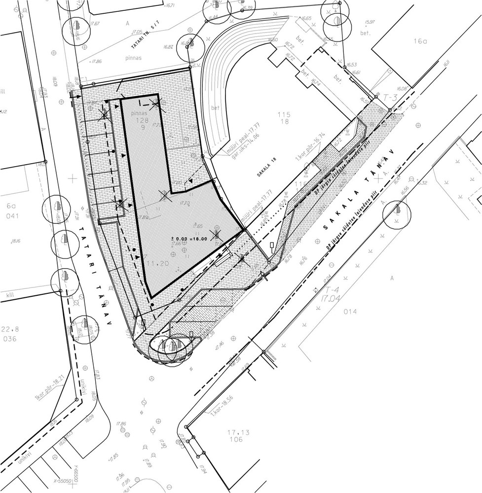
The apartment house finds itself in the very city centre, at close quarters of the main square of Tallinn, Vabaduse square.
These were the quartes where the dashing building and city planning activities stopped in the end of 1930s because of the war and it stopped for decades, for the whole period of soviet power in Estonia.
Today we can find here the small wooden houses from the turn of the 19/20th centuries side by side with the scheme of consistent street walls carried through during the first period of independence.
At the end of the 1990s the developments in the field of the city planning have finally reached to this quarter again.
The apartment house has been built instead of two small old houses pulled down and fills an empty hole between two recent apartment houses locating on both sides of the plot.
The house "smartens up" a section of city landscape on the crossing of the streets, marks its position and stresses the significance of the site by craning above the street (6th and 7th floor levels), also joining together dislocated "red lines" of the crossing streets.
The ground floor of the building is open for commercial functions, the apartments are situated on the upper floors, 27 altogether.
The two uppermost glassed floors, which reach frontward above the street, are defended from the straight sunlight by metal sun blinds.












