ARCHITECTS
Johnston Marklee & Associates
PROJECT ARCHITECTS
Mark Lee, Sharon Johnston AIA, Lars Holt, Mark Rea Baker
YEAR
2004
LOCATION
Los Angeles, United States
CATEGORY
Houses
Text description provided by architect.
The modestly scaled 2-4-6-8 House characterizes the type of early commissions that launched a generation of Los Angeles architects.
With four incrementally scaled windows from which the structure acquired its name, 2-4-6-8 confronts architectural issues prevalent in the 1970s and 80s, from typology and materiality to kit-of-parts building methods and the use of solar power.
The massing concept of the Sale House originated from a Morphosis drawing that multiplied 2-4-6-8 as identical quadruplets.
Repeating and transforming the original volume of 2-4-6-8, a ‘condensed mass' for the master bedroom mirrors the Morphosis pavilion across ‘excavated void' of the courtyard.
The original element and these two serialized variations are anchored to a rectangular base that contains the main living areas and joins the new and existing structures.
By redistributing the outdoor spaces typically devoted to driveways, front and side yards to the internal courtyard, the overall design turns the typical single-family house inside out. The platonic geometry
Private rooms in bright pink, turquoise, and yellow-orange are conceived as shaped volumes - serial deviations from the red, blue, and yellow of the studio windows.
The white walls of the main living spaces reflect these vibrant colors.
The exterior contrasts this vivid palette with the most neutral color available - that of the photographic grey card - to simultaneously contrast and amplify the interior volumes.
While light and color dynamically animate the shaped private spaces, shared living spaces are continuous and transparent to the exterior.
2'x2', 4'x4', 6'x6', and 8'x8' apertures in the new house, sized to match those of 2-4-6-8, contrast the inward orientation and compositional stability of the existing structure.
Shifted to the volume edges to accommodate circulation and services, these openings reinforce the outward orientation and rotational quality of the new intervention.
Within, centralized space is replaced by poché niches at the periphery.
A wall of sliding glass doors renders the shared living space continuous with the glass box of the interior courtyard, and the glazed lower-level street façade visually links both spaces with the pedestrian street beyond.
Taken together, the courtyard and apertures comprise an ideal passive cooling configuration:
the courtyard draws fresh air into the base of the house, while the upper windows, puncturing each face of the new volume, expel warm air and promote cross ventilation. Radiant floors provide efficient winter heating.
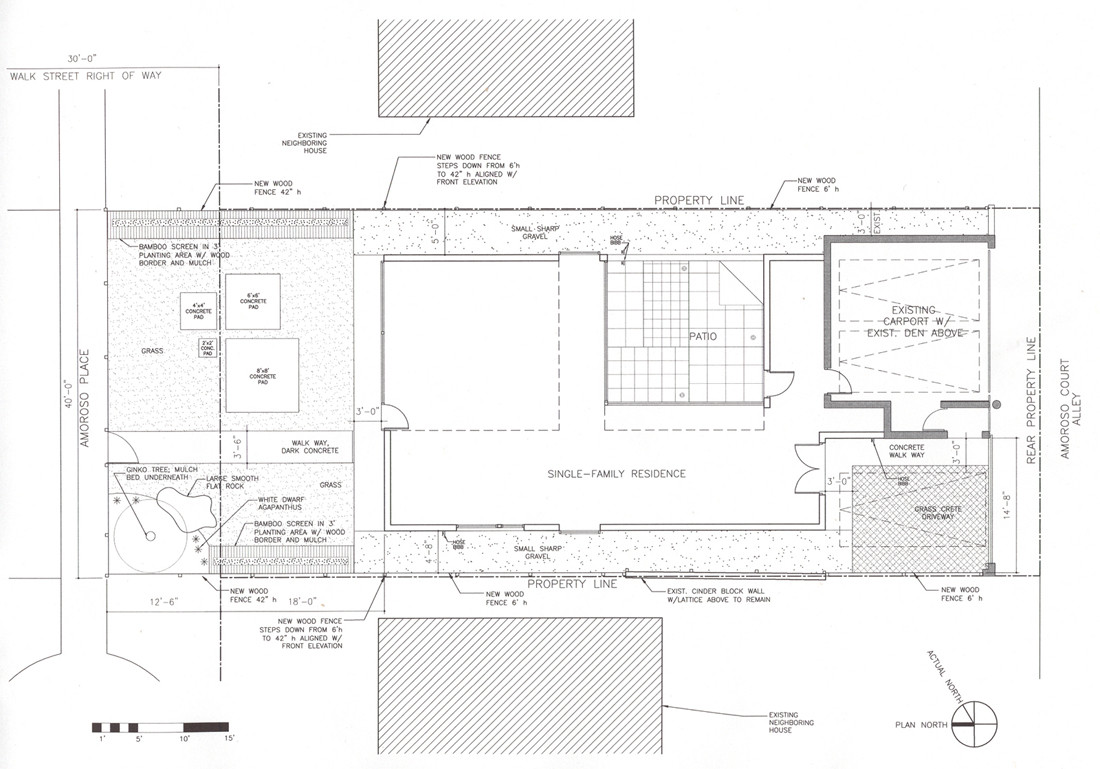
Situated on a pedestrian street with vehicular access limited to the rear alley, the design responds to the evolving nature of the Venice walk-streets.
With land values in the area far exceeding the value of the original structures, many of these turn-of-the-century bungalows are nearing the end of their life spans.
The Sale House offers a unique, well-scaled alternative appropriate to the neighborhood and the climate.









































