Hytten 4
ARCHITECTS
Metro Architects
PROJECT YEAR
2006
PHOTOGRAPHS
LOCATION
Sweden
AREA
5000 m²
CATEGORY
Housing
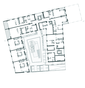
The dwelling unit Hytten 4 poses as the north east corner of the complex plan of the living fair Bo01. The consequence of the plan, with three different construction rights within the unit, is a complex building volume.
The building has an urban structure like a classical city block, with an obvious exterior and interior which manifests a non exposed, interior living.
A great span of apartment sizes as well as the contrast between the row houses and the smaller apartments gives the building a rich inner life.
The exterior, which meets the city, consists of a cohesive black shell.
The façade is a composition of cement panels and shiny black glass sheets which together with the windows creates variation and depth.
Towards the courtyard and the large balconies with great windows is the situation different.
The façade consists here of white cement panels and mahogany plywood which radiates light and warmth. The courtyard has, because of its small measurements, gotten an interior design like a small core – the common atrium.
















