
Nirvana Mountain Apartments
YEAR
2006
LOCATION
Norway
CATEGORY
Apartments
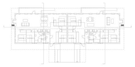
A slope in the Gudbrandsdalen valley generates narrow bodies following the contours of the land.
Generous apartments are arranged 4 in each building, clad in large scale prefabricated wooden elements.
The apartment types are tuned to the pleasant week-end life in the mountains.

T +47 22 994343
Jarmund / Vigsnæs, AS Arkitekter MNAL
Henrik Ibsens gate 100, 0255 Oslo, Norway































