Koidula Apartment Building
AREA
694.0 m2
PROJECT YEAR
2005
Building is located close to the Kadriorg park, one of the most important and historical green areas in Tallinn.
Currently the socially and historically rich district is developing quickly into prestigious living area. The residential buildings along Koidula St. date from different periods and it has caused the chaotic structure of the street.
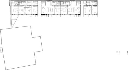
The building is composed by the old renovated part and the new wing, which is in place of the old courtyard wing. Covered passageway connects the new wing to the existing building. The aim was to keep the courtyard and Le Balto office (Berlin) is designing a private garden there. It is possible to see the depth and beauty of the plot also from the street.
The room structure of the apartments in the older part is changed, creating new connections through the floors.
The new wing situates along the border of the plot and it opens only to the courtyard garden. The house could be divided into three linear sections. The first section opening only to the garden contains stairs to the apartments as well as terraces of all apartments.
In the middle section there are living zone along with the bedrooms, the third section along the plot of the border contains so-called servant zone - kitchens, bathrooms, saunas and connections inside of the apartments.















