
House At Jardin Del Sol
CATEGORY
Houses
AREA
389.0 m2
Text description provided by architect.
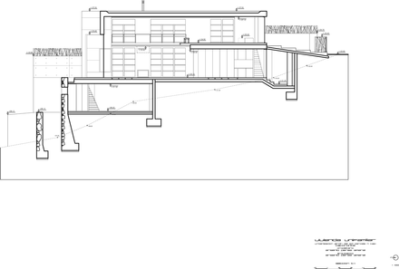
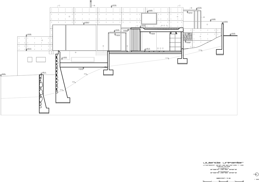
The basic idea of the project consists in the location of a monolithic concrete and glass volume over a timber platform located at the edge of a cliff in order to enjoy the amazing view of the 300m cliff, a 1000m long black sand beach, mount Teide and all the north coast of Tenerife island.
Bedroom and service areas are located in a one storie rectangular volume which enters into a double high volume containing the living-room, studio and kitchen.
Both volumes organize an L-shape around the black paddle located at the edge of the platform so water surface gets mixed with the one of the sea, so all the areas of the house enjoy the views underlined by wood and water.
A gym is located in the basement with direct access from the terrace and views to the inside of the pound through a glass wall.
The interior and exterior finishing of the closed volume consists in treated concrete while complete walls are used in the facades facing the views. Protection is solved with timber shuts in the bedroom area and outside canvas stores in the living room.
A steel and wood freestanding canopy provides shadow to the central part of the terrace.
Gardening, based in the use of local cliff species, is located in the slope between the street and the built volume so the house seems to be inserted into the natural cliff .






















