
House In the Woods In United States
Text description provided by architect.
House in the Woods is a progressive home for a young family in rural Tennessee.
The home responds to their needs for functionality and practicality, while staying within a budget of $100 per square foot.
Set on seven wooded acres, the home’s design draws from its context by utilizing raw, natural materials and simple forms.
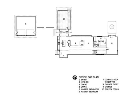
The home is designed in three simple parts: 1) main house, 2) rear family room/ screen porch and 3) garage. The main house mirrors the mass and scale of a log home on the adjoining property, and its material selection speaks to rural outbuildings in the region.
The structure is wrapped in low-maintenance corrugated metal and concrete board slats, while expansive windows serve to maximize views and light. The upper slat detail also conjures images of rustic barns in the surrounding countryside.
To define the L-shaped plan, the design incorporates a separate wing containing an expansive double-height screened porch. This rear porch allows for plenty of daytime sunlight, as well as sweeping views of the surrounding forest. This wing is similar to a detached “lean-to” as it relates to the main house.
The garage to the north is a simple and passive shed structure. Adjacent to the porch wing, it is deliberately detached to accommodate the owner’s hobby of rebuilding and restoring cars. This detachment prevents troublesome noise reaching the main house.
The home’s design is significant in that it offers a simple solution to rural housing while providing an alternate to an “off the shelf” ranch style home commonly found in the area.














