Residential building “Brancacci”
ARCHITECTS
Alessandro Luigini
LOCATION
Pescara, Province of Pescara, Italy
CATEGORY
Apartments
ARCHITECT IN CHARGE
Alessandro Luigini
AREA
560.0 m2
COLLABORATORS
Luigi Valentino Losciale, Fabrizio Susi, Nicola D’Alessandro
PROJECT YEAR
2006
PHOTOGRAPHS
Sergio Camplone, Alessandro Luigini
Text description provided by architect.
The building is in an upgrading area by replacing unqualified and obsolete construction. The size of the project, however, and its location on a side street than the major artery of Viale G.
Bovio, urban section of the SS16 Adriatica, confer to this building a exclusively architectonic role, with no possibility of influencing the city around, if not its presence qualifying.
In this scenario we have set ourselves the goal of developing a compositive program intentionally in self-referential mode, but that would meet the contingencies of the site.
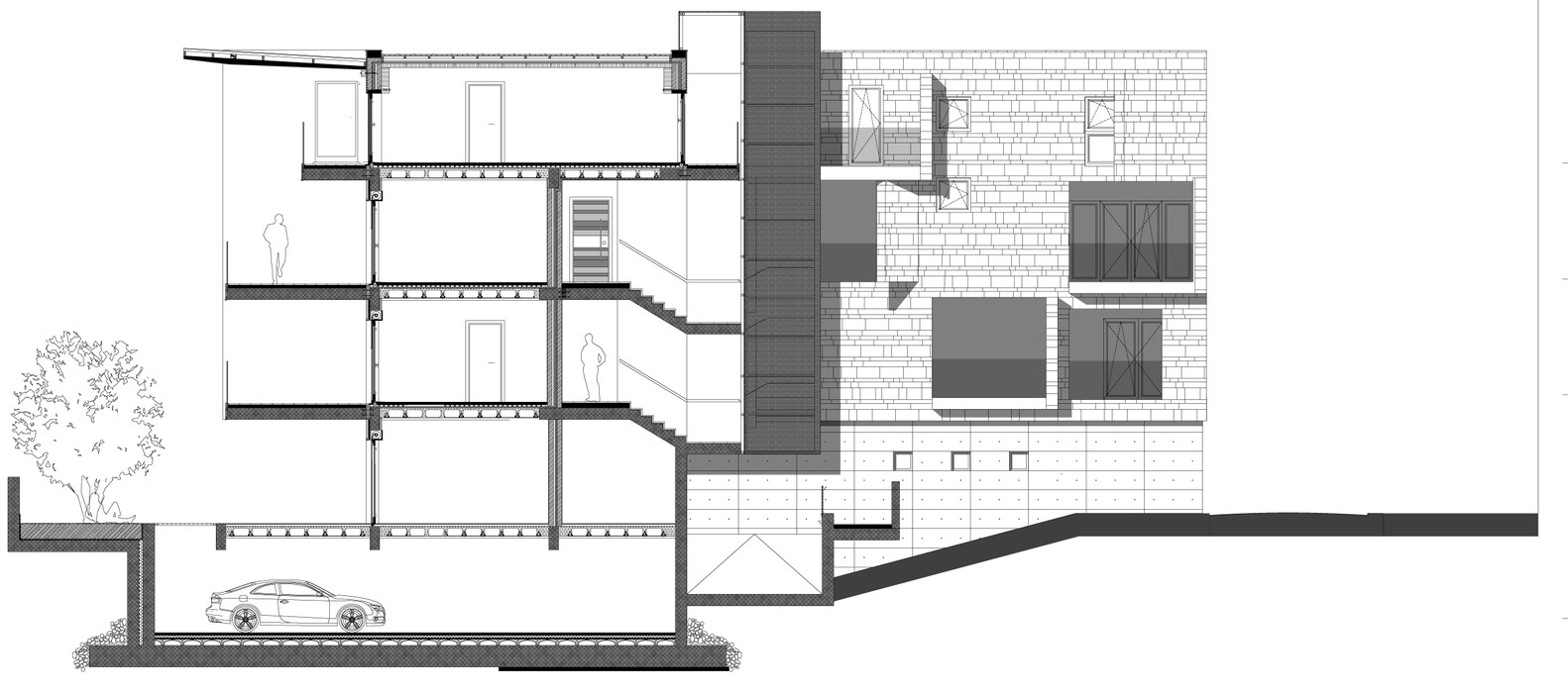
The demands of clients and, more importantly, he had the strength and clarity of a statement of intent: so we wanted to decline, with a didascalic irreverence, the Vitruvian triad Firmitas, Utilitas and Venustas in three separate volumes that the predominant feature descend directly from one single entry in the triad. So the concrete basement, for Firmitas, the stone sharded cube, for the Utilitas.
The Apollonian cube in white plaster, for Venustas, forming three portions of the building making it articulated from the volumetric and material point, and then, rich in continuously changing views: actually there is no surface portion of the building that can be flanked by similarity to another and all the elements that compose this articulated ensamble follow one another as in a film storyreel.
Harmonic sequences of perspectives in succession. In particular, the east elevation features a variability of views generated by the "shards" which open from the facade and have the dual function of limiting the introspection of spacious loggias behind and pick up the light from the south to convey it in places exposed to north.
The concept of the project are provided for some aspects that make the building energy efficient and compatible with the latest views on sustainable construction: all finishing materials, adhesives and impregnating wooden parts are natural and maintain. The completely recyclable at end of life of some parts of the building.
The optimization of natural light even through the collection of daylight through the "shards" the low transmittance envelope with the self-energy (photovoltaic and solar thermic) and exensive use of LED lighting (all exterior lighting consumes less than 100W) carry the energy demand of the building between 35 and 38 years kWh/sqm per unit.
























