
The Gary Comer Youth Center
ARCHITECTS
John Ronan Architects
PHOTOGRAPHS
Steve Hall/Hedrich Blessing, Chris Lake
AREA
75000.0 ft2
YEAR
2006
LOCATION
Chicago, United States
CATEGORY
Youth Center
Text description provided by architect.
This youth center, located in the Grand Crossing neighborhood on Chicago’s south side, provides a constructive environment for area youths to spend their after-school hours.
The center provides support for the programs of the South Shore Drill Team and Performing Arts Ensemble, a 300-member dance performance group for children aged eight to eighteen that performs in parades and on stage about 50 times per year.
In addition, the center provides space for various youth educational and recreational programs.
The building’s main space, an adaptable gymnasium that serves as a daily practice space for the Drill Team, converts to a 600-seat performance venue via a deployable theater seating system, deployable curtains and stage doors that open to reveal a 80 foot by 30 foot performance stage.
This space, together with the adjacent cafeteria that overlooks the gymnasium, comprises the center of energy for the complex.
Programmatically adaptable space housing the educational and recreational support programs wrap around this main space on three levels to feed off of the primary energy generated there.
This wrapping space contains educational and recreational youth programs, including arts and crafts rooms, computer labs, dance rooms, a recording studio, costume design shop, tutoring and study spaces, classroom, office and exhibition space, organized inside flexible bars that can be modified over time as programs in the youth center evolve, to maintain the building’s programmatic sustainability.
These bars terminate in important spaces on the building exterior (dance rooms, art rooms) to advertise the activity inside to the community.
Glazing inside the building allows visual access between the different program spaces to foster a sense of community between the different building users, as well as create a sense of security for the children using the facility.
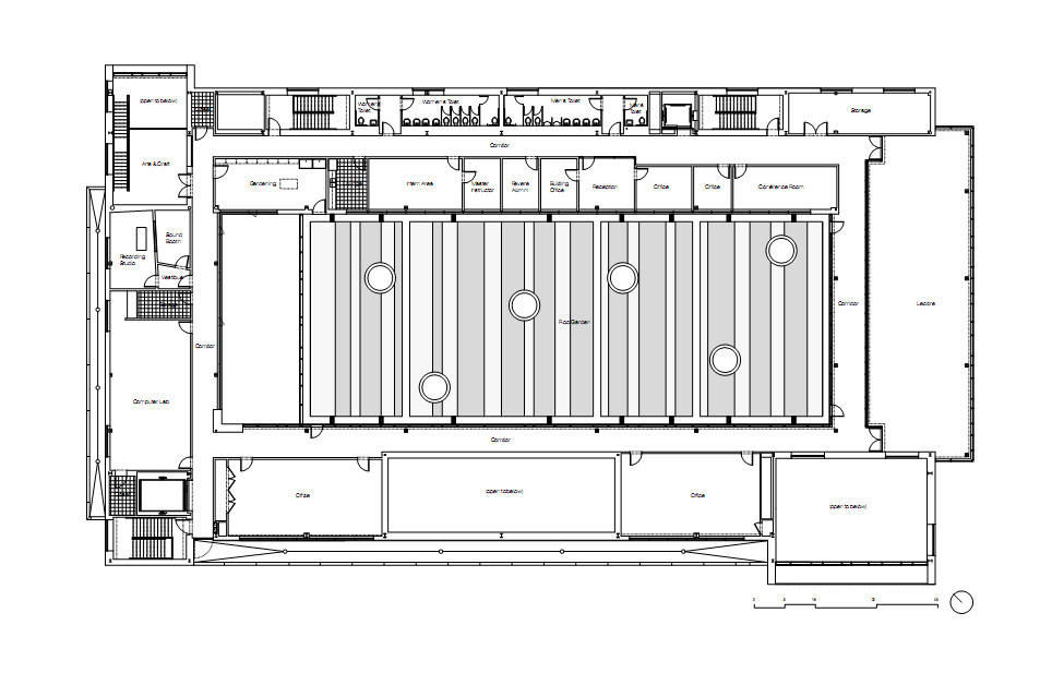
Classrooms, offices and exhibition spaces on the third floor overlook a planted roof garden above the gymnasium/theater and cafeteria.
The roof garden, with 24 inches of soil, serves as outdoor classroom to supports youth horticultural programs; food plants are grown, harvested and used in culinary arts classes that take place in the building’s teaching kitchen.
Skylights dot this rooftop landscape to bring natural daylight into the gym and cafeteria below.
The garden collects and recycles rainwater, and serves to reduce the urban heat island effect in a way that reinforces the educational mission of the youth center.
On the exterior, a rainscreen cladding system of brightly colored fiber cement panels reference the brightly-colored flags and uniforms of the drill team, and speak to the center’s youthful orientation.
The cement board panels are arranged in a random pattern to allow for panels to be replaced over time in response to damage or vandalism, without drawing attention to replacement.
An 80-foot tall mesh tower surmounted by an LED sign announces programs and events, serving as a visual marker for the community.


































