
New Stobhill Hospital
ARCHITECTS
Reiach And Hall Architects
PHOTOGRAPHS
Reiach And Hall Architects
AREA
28000.0 m2
YEAR
2006
LOCATION
Stobhill, Morpeth, Northumberland NE61, UK
CATEGORY
Hospital
Text description provided by architect.
New Stobhill Hospital, designed by Reiach and Hall Architects for NHS Greater Glasgow and Clyde, represents the first of its kind to open in Scotland. Procured under PPP, the brief was for a true ACAD (ambulatory care and diagnostic) facility.
The ethos behind the project is that the patient comes first: all medical tests and consultations will be carried out on the same day on the same site if possible, and if a medical procedure is required, the patient will be given a fixed appointment date there and then.
Working with Balfour Beatty Construction Ltd, Glasgow Healthcare Facilities Ltd and NHS Greater Glasgow & Clyde the £80 million New Stobhill Hospital is a hospital containing over 20 departments accommodating general day surgery, ENT, gynaecology, urology, renal dialysis as well as outpatient clinics, diagnostic services and therapy care.
Part of the existing Stobhill Hospital campus in a semi-rural location adjacent to Springburn Park in North Glasgow, New Stobhill will serve over 2,000 patients a day and provide around 80% the services of a district general hospital.
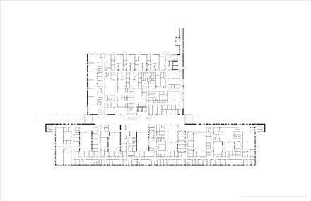
Stobhill Hospital is loved by local residents. Dr Jean Turner was elected to the Scottish Parliament on a single issue manifesto to prevent its closure. To maintain an orientation towards this institution, New Stobhill sits adjacent to the existing. A canopy reaches out enclosed by built form.
The patient enters a full length, full height, glazed, public arcade awash with natural light with a visible exit ahead easing the transition. The reception is immediately visible, and from it any department can be pointed out.
All vertical circulation is at the centre of the space. The arcade is the civic heart of the hospital and, hosting a café which apparently serves the best coffee in the area, has become a place for local folk to meet and visit.
New Stobhill has a deceptively simple diagram – two blocks of accommodation, the north treatment block and the south consulting block, connected by the public arcade.
The design delivers flexible and adaptable clinical and staff environments and uses construction capable of alteration and extension. The entire top floor is devoted to staff accommodation – generous changing areas, bright offices, staff canteen with a roof terrace and stunning views to the Campsie Hills.
Energy efficiency has been wholeheartedly embraced and a NEAT rating of “Excellent” was achieved. Lighting systems and maximizing potential for daylight minimises energy consumption. Re-heat exchanger circulates plant room hot air.
























