
Coo Hair Eclat
DESIGN
Nobuo Kumazawa
PHOTOGRAPHS
Takao Kato
AREA
125.0 m²
YEAR
2007
LOCATION
Meito, Japan
CATEGORY
Commercial Architecture
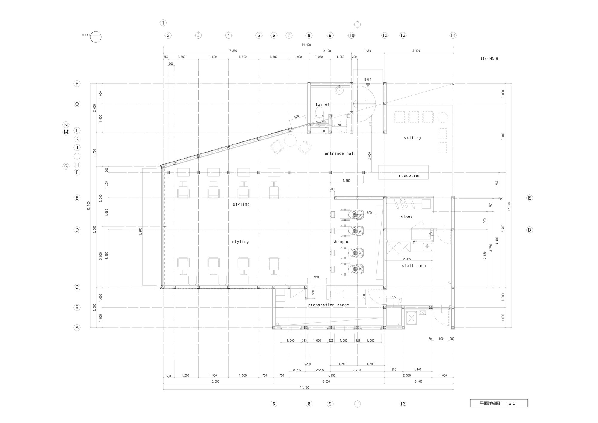
COO Hair ECLAT is a beauty salon completed in a suburban area.
The idea was to create a frame that presents the scenery in the shop as a picture to the people walking on the street and riding past along the road it faces.
Resting on the slope with its front part jutting out, the building clearly establishes its sense of presence and at the same time acts as the signboard.
Different areas of counter, waiting, counseling, styling and service spaces are connected to each other with enlarged or reduced volumes without a clear sense of boundaries.
From the outside, everything in the compact and seamlessly partitioned spaces and every movement of the people in them will be registered as scenes from a film.

















