
Radio Nacional De España Headquarters
CATEGORY
Institutional Buildings
LOCATION
Barcelona, Spain
YEAR
2007
ARCHITECTS
Ravetllat-Ribas
PHOTOGRAPHS
Roger Casas
Text description provided by architect.
The main purpose for the new Radio Nacional de España head office in Barcelona was to solve an administrative program combined with editorial and broadcasting services.
The building is a five story volume with rectangular clear geometry. It is located in the ancient industrial neighbourhood of Poblenou, now called 22@.
The new head office is integrated in a rehabilitation master plan that wants to boost the zone with new public buildings.
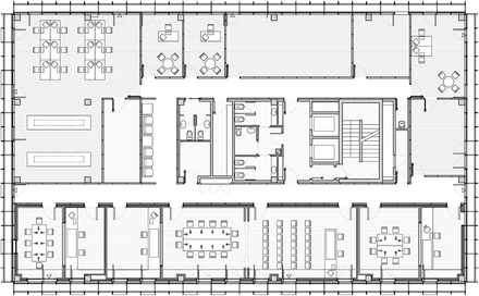
We proposed a rectangular floor building with the vertical communications hub located approximately in the middle. That situation allows taking the maximum advantage of the façade’s surface. The hub connects the building with the basement floor, the parking and installation rooms.
The façade has a unique modular system capable to provide thickness to the envelope and to incorporate elements for solar light control. That module also involves the solution for the interior screens, dividing the different programs. A service footbridge for cleaning and maintenance covers the perimeter of the four sides of the building, acting also as “brise-soleil” on the required parts. We searched to give natural illumination to every space.
The structure arises as a grid of concrete pillars covering lights from 5,50 to 7,00 meters, and concrete slabs for the floor. Inside the grid appears as a fixed element the communication hub that collaborates to the stability of the building. That core is surrounded by services, technical units and installation yards, constituting a central strip around which is distributed the program with screens and dry construction elements.
















