Hangar 16
LOCATION
Madrid, Spain
YEAR
2007
AREA
5200.0 m²
ARCHITECTS
Iñaqui Carnicero Architecture
CATEGORY
Music Venue, Exhibition Center
A former restored slaughterhouse in Madrid offers space for a variety of culutural and creative activities, such as exhibitions that utilize defunct carcass-hanging hooks to display delicate pieces of art.
We tackled the challenging budget set by Madrid’s city hall with and adaptable intervention that is based on a single material and structural feature.
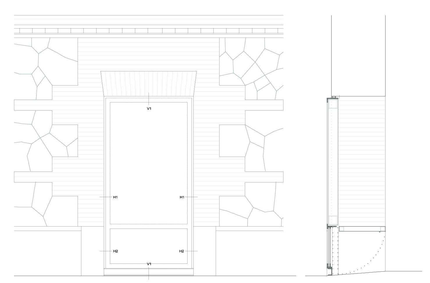
At the core of the concept for the vast space is a system of double-height steel pivoted doors that can be adjusted easily to meet the needs of the user.
The battery of doors encloses a central rectangular space, enabling this area to be segregated from the rest of the hall.
One possibility is a neutral void that is suitable for avant-garde installation art and projections. When opened, the set of doors connects the central area with the rest of the space, achieving full flexibility.
When the central area is not enclosed, visitors have an excellent view of the old interior of a building whose historical value has been preserved.
Existing windows and doors are equipped with the same steel mechanisms, a nod to the larger intervention and a modern adaptation to the slaughterhouse. Steel window shutters can be closed to block the outside environment and to darken the interior for concerts and performances.
Displaying a similar character, the main door pivots at its central lateral point, thus becoming a marker that defines a threshold leading to the main space.
The chromatic contrast between the converted interior and its monumental brick shell enhances this unobtrusive and elegant backdrop to public events, while allowing it to retain a subtle industrial aesthetic.




































