
Office Building 200
LOCATION
Grenzach-wyhlen, Germany
BUDGET
about Swiss Francs 20 Mio.
CLIENT
Roche Pharma Germany
CATEGORY
Office Buildings
AREA
6500 m²
Text description provided by architect.
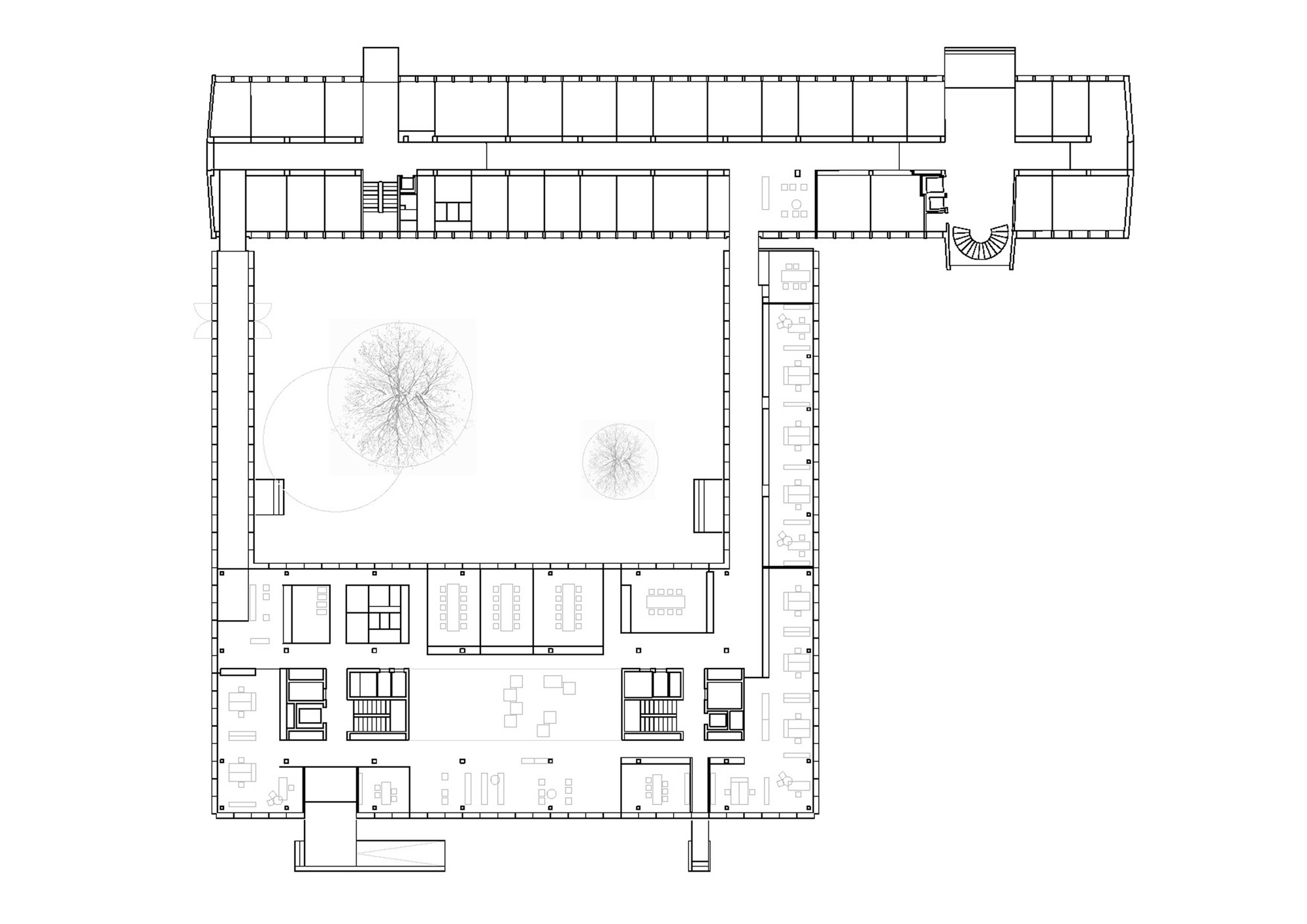
The new building embraces the lines of the existing building by Roland Rohn, frees up the imposing stairwell, and reinforces the elements of the spacious park area, whilst at the same time creating its own aesthetic of light and transparency.
Two connecting passageways on the ground floor link north with south and old with new.
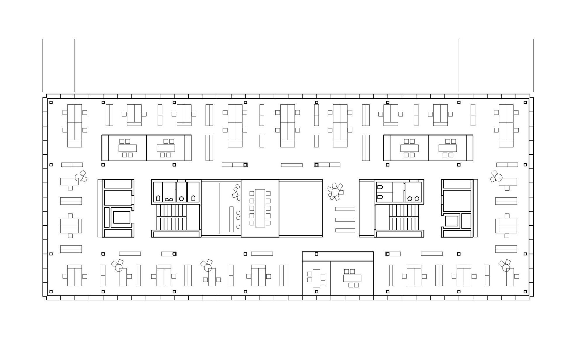
All four storeys are interlinked via the central atrium with conference boxes and recreational areas inserted at each level.
The transparency and openness of the building’s shell are thus carried through to the interior and, together with the open space concept of the office zone, create a flexible working environment that is conducive to communication.

















