School For El Coporito
ARCHITECTS
Antonio Peña, Juan Garay, Alexis Ávila
LOCATION
Mexico
YEAR
2007
This project came from a governmental program in which some Mexican architecture schools participated.
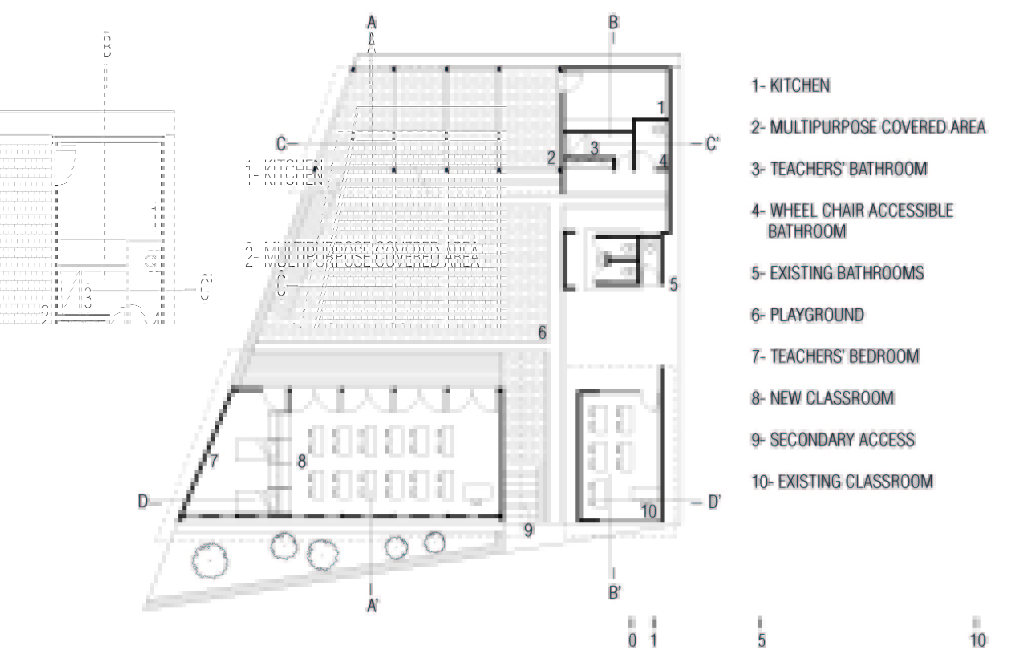
The idea is to bring functional and well planned schools to Mexico’s poorest regions, in this case a community named “El Coporito”.
The school, which was completely designed by students with the supervision of architects Fermín Andrade and Juan Carlos Cano, was chosen as the best option in a competition planned by the institution in charge of delivering education.
Upon being chosen, a group of 8 students moved to the community for 2 months to participate in construction.
The idea of this school was to have multipurpose buildings that would allow the whole community to use it in several other ways, rather than just a school.
Every material used in construction came from site, such as the stabilized dirt bricks (dirt+concrete).























