
Biscay Statutory Library
ARCHITECTS
IMB Arquitectos
PHOTOGRAPHS
Åke E:son Lindman
YEAR
2007
LOCATION
Bilbao, Spain
CATEGORY
Library
Text description provided by architect.
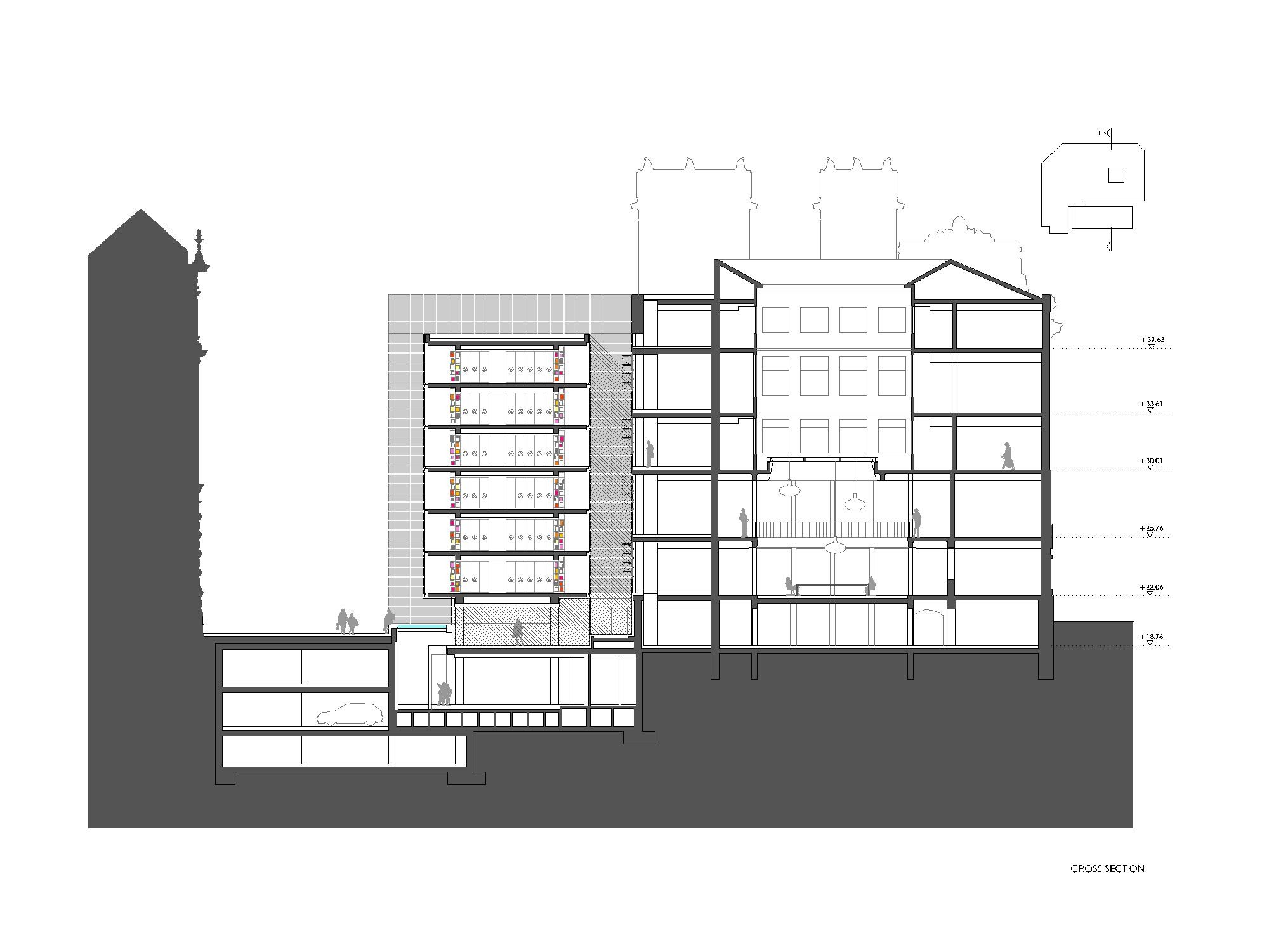
The project, resulting from an open competition of ideas, influences a complete unit of Bilbao's urban grid.
The area includes an existing building, which has had to be reformed, and an open space, permitting a new construction in response to the demand of the client.
The main argument of this project is to organize the “old” and the “new” in three constructed volumes which belongs to the three major, yet clearly separated functions.
The existing building has been reformed to achieve open and flexible interior spaces, which will be used as public halls for reading and research.
The new construction includes two new built up volumes. The first one, covered with stone, houses administration.
The second one serves to store the books and is designed like a glass container which expresses and symbolizes the function of the new library to the city.
The texture of the books is used as an excuse to establish a cultural reclaim and the evident dialogue between the interior of the building and the public space in the outside.
During the day the image of the printed serigraphs, which are representing the written content of the books, are predominating.
At night the artificial illumination intensifies the dominance of the books stored in the shelves.
The storage building extends over a foil of moving water which represents the progress of knowledge in evolution.
It is materialized on top of a glass surface which allows the light to pass through to an auditorium in the basement.
The architectural ensemble is formed around the courtyards, which are contributing natural light to the habitable spaces.
























