Text description provided by architect.
This house, in the Tarn et Garonne region of south western France, was designed by Vicky Thornton working in collaboration with Jef Smith of MELD.
A rubble limestone base containing a bedroom, pottery studio, shower and utility rooms below the main living and bedroom spaces enclosed in a chestnut clad timber frame.
The Inflecting timber forms of the upper level are intended to respond to the approach, landscape and surrounding views.
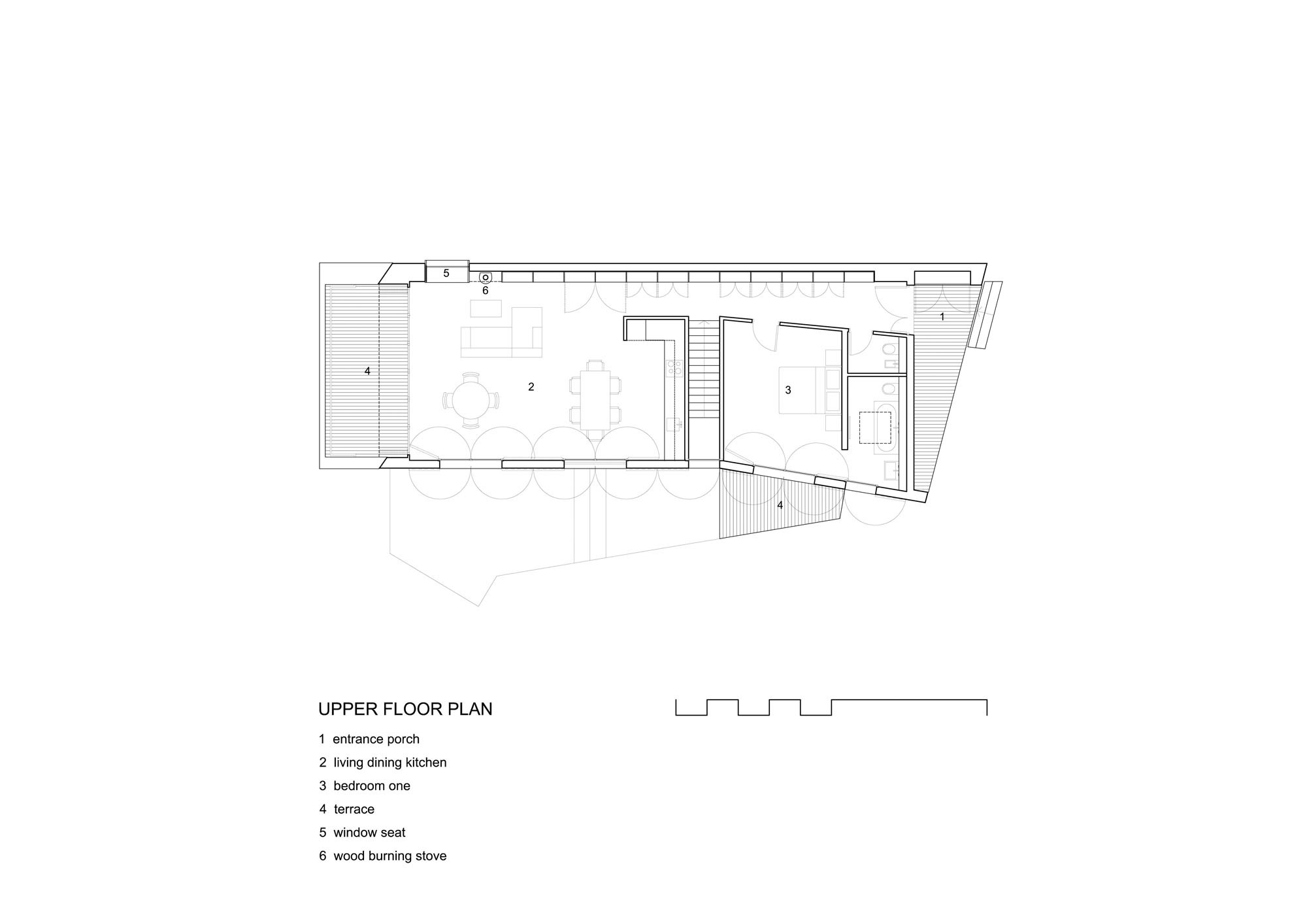
At one end, the high roof of the front porch, angled to look along the access road, slopes down with the narrowing entrance hall.
This funnelling compression towards centre of plan is relieved by the top-lit staircase before the ceiling rises up into main living area with expansive, long views out across the surrounding landscape.
The angled returns to the cantilevering terrace reveal views of the valley and distant hilltop town while concealing the adjacent houses.
Vernacular materials and elements create a pragmatic aesthetic particular to place. The rubble stone walls are typical of this part of France as are timber shuttered windows and sliding galvanised steel doors on local farm buildings.
Here the timber shutters close flush with the walls to continue the board on board rhythm of the chestnut cladding, giving strong vertical shadow lines which compliment the heavy modelling of the rubble stone.
Internally the walls and ceiling to the upper level are lined in OSB, painted in the bedrooms to distinguish the more private spaces but left ‘fair faced' on the remaining walls, giving a warm texture to the interior of the house.
Joinery elements, like the kitchen cabinet doors and long shelving wall are expressed in phenolic ply, chosen for its robustness as well as to offset the OSB.
At the lower level the ceilings and internal face of the external walls are faced in lime render with timber lined window seats created in the deep reveals.
Essentially robust and low tech, the house is highly insulated and utilises the potential for passive solar heating in the winter while the high thermal mass of the lower floor and large volume of the timber frame (with sun-shading shutters to south facing windows) enables a comfortable temperature to be maintained in the summer without the need for air conditioning or mechanical ventilation.
The house incorporates: solar thermal panels for domestic hot water; rainwater harvesting for flushing wc's and irrigation; a green roof; and uses locally sourced materials and labour.






















