
Esseker Center
Text description provided by architect.
In 2002 we won an urban architectural competition for one of the rare not built plots in the historical center of Osijek. Urban part has to give a solution that will connect the main city square and the promenade along Drava River.
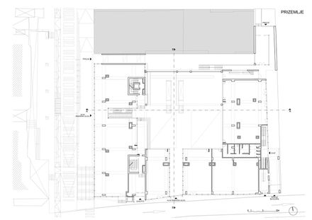
The building has to put together: public garage, shopping center, offices and the housing on one side and to fit into the existing urban tissue on the other side.
The U shape building is enclosing internal shopping gallery with movable pneumatic roof.
On the ground floor level the gallery is treated as an integral part of the pedestrian flows that are connecting the main square and the promenade along Drava River. The façade treatment follows the functional building organization:
The public space of the ground floor is focused to the surrounding streets – transparent windows; Shopping on the 1st floor and the offices on the 2nd floor are orientated to the internal gallery – textile translucent façade; the oak wood façade of the hosing part; and Bellevue with the bar – transparent glass.
Actually, the house has totally glazed façade that is covered with the translucent material on the 1st and 2nd floor.
With the textile translucency the building has two different appearances: day – when you can see a unified building body, and night – when the content of the interior is coming to the façade.
The idea behind the oak wood housing façade was a clear division between the housing and the public part of the building.
Since that façade of the building is shaping the public space of the street the sculptural treatment of the façade is emphasizing the flow direction of the streets – from the main square to the promenade.
Implementation of this idea was an experiment for us as the architects, and there is relatively few investors that have intent to experiment on their commercial projects. So, it was not so easy assignment to realize this project.



















