
Amalia House in Austria
LOCATION
Austria
CATEGORY
Houses
AREA
68.0 m2
Text description provided by architect.
Amalia -named after the grandmother of her owners -is a holiday cabin to host family members spread all over austria.
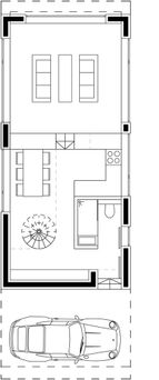
Located on top of a hill in Styria, overlooking the valley of Kirchbach Amalia offers space for up to six people, without having to spare any comfort.
Organised in 2 levels, one of them split, she lets the landscape float in and gives view to her surrounding from everywhere within.
To give tribute to the nature around her and maximize the interchange between inside and outside, the house is completely covered with artificial grass -with only the windows left out.

T +43 192 53196
Grid Architektur ZT GmbH
Hammer-Purgstall-Gasse 5/4 A – 1020 Wien, Austria











