
Tehama Grasshopper
ARCHITECTS
Fougeron Architecture
STRUCTURAL ENGINEER
Endrestudio
PROJECT TEAM
Anne Fougeron, Todd Aranaz, Toby Stewart, Dennis Luedeman, Endres Ware Architects / Engineers
AREA
418.0 m2
YEAR
2007
LOCATION
San Francisco, CA, USA
CATEGORY
Renovation , Apartments Interior
Text description provided by architect.
THE CHALLENGE
To transform a two-story, concrete San Francisco warehouse into a modern, elegant office and residence.
To make a sanctuary for a young family that embraces the city's structure and landscape yet creates an atmosphere of intimacy and repose.
To infuse an old, abandoned warehouse district with the vibrancy of a new neighbourhood - one building at a time.
THE DESIGN
A surprising integration of old and new elements, of competing urban forces, brings the remodeled warehouse alive.Three stories of interlocked spaces have distinct personalities and functions: office, main living area, and penthouse.
The rigidity of the original concrete structure is broken down in a subtle interplay of light, surfaces, levels, and indoor and outdoor spaces-making the urban living experience as richly textured as the city itself.
INDUSTRIAL AND RESIDENTIAL
The new lobby for the ground-floor office space opens onto a private residential entry with a custom steel staircase.This simple, unassuming entrance remains true to the industrial nature of the building and surrounding neighborhood.
PUBLIC AND PRIVATE
The second floor is the main living space for the young owners and their child. Its focus: a new courtyard, cut out from the existing floor plate, that connects the building to the new penthouse above and to the sky.
This vertical section offers multiple layers of transparency and views from one floor to the next, thus interweaving the inside and outside spaces with a play of light and dark.
According to the owners' request, clear glass walls enclose bathrooms and a child's bedroom, confounding notions of public and private.
The viewer's eye is kept in constant motion from a multitude of angles. This visual enticement, and the size and scale of the interior spaces, lend beautifully to the flow of life within and throughout the house.
ROUGH AND REFINED
All the new elements in the living space-kitchen, bathroom, and storage-are treated as eight-foot-tall cabinetry, floating within the existing volume.
Old and new are allowed to live together in what reads as one, large space: rough warehouse framing and concrete walls; refined, pristine cabinetry and glass windows.
URBAN AND NATURAL BEAUTY
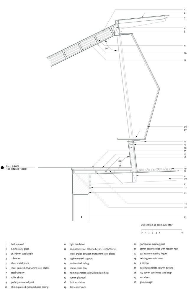
The airy third-floor penthouse addition is the centerpiece of the design. The geometry of this sculptural object is a deliberate contrast to the orthogonal grid of the existing concrete structure.
Reminiscent of rooftop staircase enclosures on old San Francisco warehouses, the penthouse adds natural form to the urban landscape-like a grasshopper settled lightly on the building surface. From all vantage points at the rooftop level, the owners enjoy breathtaking views of the city skyline.
The penthouse living area includes the master bedroom and bathroom as one free-flowing space. It wraps around the courtyard, interweaving the upstairs and downstairs levels. Clear glass panes-again a requirement of the owners-offer no visual privacy. Their connection to outer world is a celebration of urban living.
SUSTAINABILITY
Adaptive reuse of an existing, underutilized warehouse. The existing building was adapted for a mixed-use function, allowing both commercial and residential uses enhance and improve the neighborhood.
Heating system. Radiant concrete floors both in the penthouse and on the main level allow for the elimination of ductwork. The energy usage is significantly lower and more efficient than the traditional forced air system. The quality of heat is also more uniform and comfortable for the residents.
Operable glazing for ventilation. We kept the existing exterior window system, preserving its operable elements. In addition, the courtyard space allows for large glass sliders that admit natural ventilation. Upstairs, the glass sliders are also operable.
The sliding doors both on the main level and in the penthouse, combined with the open stairwell allows for a 'stack ventilation effect' - letting the building expel excess heat without mechanical equipment.
Natural daylight. The previously dark warehouse was transformed into a light filled residence with the addition of an interior courtyard and several skylights. This reduces the load on artificial lighting and raises the comfort level for the residents. Also, all new glazing is insulated and has a low-e coating, reducing the solar gain on the interior.
Efficient artificial lighting. The required artificial lighting primarily uses high efficiency, dimmable, T-5 florescent tubes. We were able to eliminate the commonly found incandescent recessed ceiling cans. The dimmable florescent tubes allow the residents to adjust the light levels as necessary.
Low VOC & sustainable finishes. The interior paint and other interior finishes are low VOC. Also, the added insulation in the walls is formaldehyde free.Solar orientation. The penthouse addition opens itself to large expanses of glass on the north and south sides.
The east and west elevations are solid, structural walls with clerestory glazing. This provides thermal mass, blocking excess heat from entering the building. Also, roof overhangs on the south elevation block harsh summer light while allowing winter sun to enter and warm the space.
Exterior cor-ten steel cladding. This natural material cladding the new roof penthouse was chosen for its durability and longevity, as well as its reactive nature with the environment and the passing seasons. The steel will oxidize over time, eventually turning from a black to various hues of orange. This natural process forms a protective coating over the un-oxidized steel beneath.
Roof deck. The penthouse addition allows for access to the roof, where a wood ipe deck was added. The urban site does not allow for a front or back yard for the young family of three, so the roof deck was added for their use. There are plans for a garden and planting in the future. The species of wood used, ipe is highly durable and a fast-growth material.
MATERIALS
- Countertops - carrera marble
- Cabinetry - conversion varnish finish
- Floors (kitchen, courtyard) - poured resin
- Floors (other) - polished & stained concrete
- Staircase - blackened hot rolled steel
- Roof Deck - ipe wood
- Exterior Cladding - cor-ten steel
- Courtyard Glazing - insulated aluminum sliding doors
- Penthouse Glazing - insulated glass, custom steel frames
- Existing walls - poured-in-place concrete






































