Rectorate Office Building
ARCHITECTS
Hauvette & Associés
CATEGORY
Office Buildings , Renovation
LOCATION
Avenue de France, Kourou, French Guiana
AREA
5520.0 m2
PROJECT YEAR
2007
Text description provided by architect.
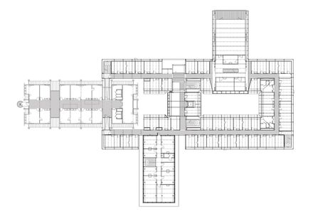
The project is designed around a rehabilitated 1980s building whose white external walls had been entirely repainted.
Organized around a patio, the main building containing the new rectorate is a rectangular object surrounding the rehabilitated building.
Each of its faces has two steel and local wood "drawers", one containing the raised rectorate offices, the other the computer services.
The project reinterprets a certain "tropical" architectural tradition that has always successfully combined imported components and local materials.
As a result, this office building, which uses sustainable, recyclable and renewable materials is, on the one hand, factory-manufactured, delivered in containers and assembled on site and, on the other hand, uses carpenters working with the magnificent regional woods that are available.
To reduce electrical air conditioning to a minimum, the building is designed as a sort of sunlight control and management system.
The elevations of the main building are clad with a perforated stainless steel skin that subtly shades the windows.
The faces of the "drawers" incorporate screens assembled from rot-proof bebeeru wood.
The patios, protected by large aluminium and local wood sunbreakers, introduce a soft, relaxing light into the surrounding offices.
The rationality of the project is made apparent through its strict modularity, with each partition perpendicular to the elevation being repositionable along a 48 cm grid.
The pleasure of working in the building has been accentuated by the incorporation of fast-growing plants into the architecture, as well as attractive species of trees planted in the gardens and avenue trees leading to the car park.














