
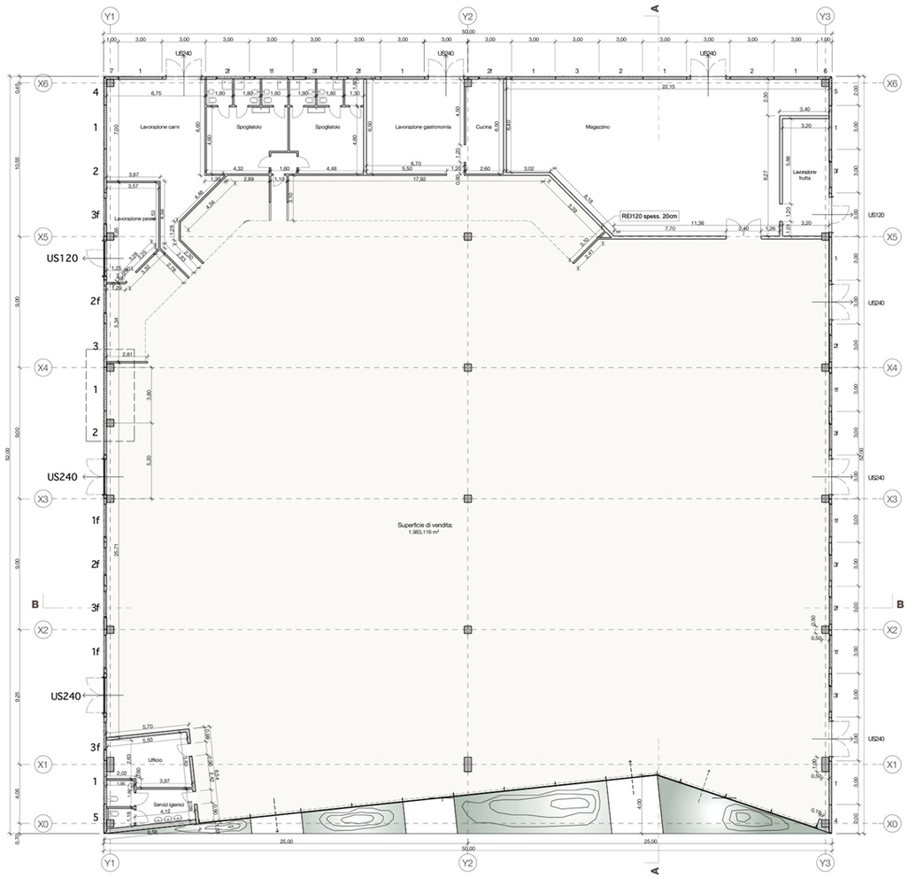
Food Container Remixed
ARCHITECTS
Spacelab Architects - Luca Silenzi
LOCATION
Fermo, Province of Fermo, Italy
CATEGORY
Industrial Architecture
YEAR
2007
AREA
7200.0 m2
Text description provided by architect.
From box to hypercube. This brand new commercial building is a part of a wider urban district planned from Spacelab Architecture since 2006 in the city of Porto Sant`Elpidio - middle Italy, in the course of completion.
The client brief was to realize the maximum formal impact in the limits of precast construction and basic tipology dictated by the medium-commercial function.
We intended this limits as an occasion to conduct the modular precast construction to new formal results.
Mixing two structural systems {precast concrete grid + metal reticular truss}, the box resulting from urban plan parameters {maximum surface and height} is made more complicated in the entrance side by a tridimensional prismatic intrusion in the original volume, distinguished by using glass and other traslucent materials in comparison to other opaque fronts.
The result is a distorsion of perception near the main facade overlooking the public space, inside a more basic/stereometric frame.
The other sides are charaterized by a precast custom-made concrete envelope, which module is denied by a continue abstract texture visually connecting each panel to the contiguous.






















