Suntro House
ARCHITECTS
Jorge Hernandez De La Garza
YEAR
2007
CATEGORY
Houses
LOCATION
Oaxtepec , Mexico
Text description provided by architect.
This house is located in a residential area of Oaxtepec, a place of exceptional natural beauty.
It is contiguous to the north with the hill of Tepozteco and to the south with a highway that conduces to Haciendas de Yautepec.
The lot is oriented to the northeast with a splendid sight of the Tepozteco. The natural light is filtered trough the folds of the house in shape of rays that softly flood the spaces. Reflects and shadows on walls and ceilings animate the interior.
The shape responds to the hard hotness of the site, to place every space in the best way inside of a curved skin that opens to the immediate context to obtain the best climate and views to allow the wind circulate in a way that in summer the house can stay cool.
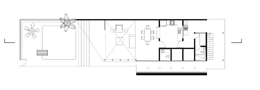
The topography presents a unevenness that was approached for the pool to stay at streets level letting the rest of the house uprooted midlevel.
The organization takes place in a clear division in the horizontal direction of the house locating in the ground floor the public and recreation areas and in the high floor the dormitories connected with the lower floor by an inner-outer circulation.
The different habitable spaces fit in a transparent area that makes its continuity with the exterior by the concrete floor that extends to the open areas, allowing to the users to move in a fluid space without obstacles.
On its front sight appears slender with a great sense of lightness like being conformed by one only volume floating over the living and dining room, this sensation change along the points of perspective, when the planes conform volumes and empty spaces, result of a formal experiment rationally controlled.
















