
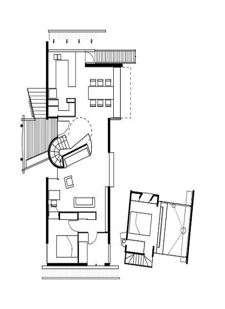
Social Groups House In Auckland
PROJECT YEAR
2007
LOCATION
New Zealand
CATEGORY
Houses
Text description provided by architect.
This house in three parts is designed to have the flexibility to accommodate various social groups.
The house, apartment, and studio share social and exterior spaces, but could operate almost independently.
The site is elevated on a busy road, close to a beach, with great views over the harbour. Auckland is a city where outdoor life is vigorously embraced.
The concrete walls of the buildings- which associate with the nearby historic concrete coastal fortifications- are partly covered with creeper, to soften them and protect them from the summer sun and rain.
Rainwater is collected off the roof via a large gutter into a tank for domestic use. Solar panels augment the heating of water.
The materials of precast concrete, plywood, plastic and quarry tile are common vernacular fare in Auckland, but not usually put together like this.
The traditional veranda has become a roof terrace, hedged and covered- a much used dining room with a view.





















