
CEIP De MURO
ARCHITECTS
BB Arquitectes
AREA
3280.0 sqm
YEAR
2008
LOCATION
Muno, Spain
CATEGORY
Higher Education
Text description provided by architect.
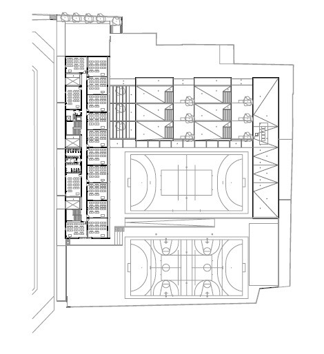
On a parcel of land with several initial determinants: on the one hand an area with a significant slope towards the west and the geography of Mallorca’s plain; and on the other hand, the presence of adjacent facilities with a considerable volumetric importance.
These factors pointed towards a proposal that fits the topography and which, morphologically, allows the continuous perception of the entire plot and its boundaries, seen together with the composition and use of materials.
The project examines and explores the expressive capacity of the concrete block, a material that is inexpensive; accessible; versatile, thanks to its modular form; easy to install and often incorporated into the construction process of Balearic architecture.



















