
Pulpit Rock Mountain Lodge
ARCHITECTS
Helen & Hard
AREA
1260.0 m2
YEAR
2008
LOCATION
Strand, Norway
CATEGORY
Cabins & Lodges
Text description provided by architect.
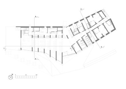
The new Pulpit Rock mountain lodge, the winning design competition entry in 2004, accommodates twenty-eight guest rooms, a café, a restaurant and a conference room. The lodge is situated at the trail-head leading up to The Pulpit Rock, the sheer cliff cantilevering over the Lysefjord.
SITE CONDITIONS/PLACEMENT
The lodge’s placement and massing is well fitted into the immediate environment with its undulating terrain, its roof profile drawn from adjacent peaks.
The volume is furthermore bent around a rock outcropping creating a gesture to the main entrance. It has an access path going around the hill to the access plateu in front of the entrance.
The roof is overhanging at different places to cover outdoorspaces and terraces which are connected to the restaurant and conference room.
CLIENT
The client, Stavanger Turistforening (Stavanger Trekking Association), responding to the rapidly increasing amount of tourists visiting the Pulpit Rock (currently around 120 000 people yearly), realised that the old cabin (built in 1947) did not meet modern standards.
The client’s brief was to provide a modest building with appropriate accommodation and upgraded bathroom facilities. The building should have universal access and be truly environmentally friendly.
CONSTRUCTION & MATERIALS
The construction system consists of 32 wooden ribs of massive timber elements placed at a distance of 2,8m.
Every wall, floor and roof is built up with the same prefabricated system.
The ribs are doubled between the guestrooms so that the floor elements can be suspended between, while also preventing lateral sound transmission. The ribs containing the public rooms are hollowed out to create more space. The ribs are oriented towards the views.
The massive timber is Holz100. This system was chosen for the construction because of its completely pure wooden system without any need for glue or nails.
The timber panels, consisting of different layers of wood are only held together by wooden dowels, which swell after being injected. This means that the wood retains almost all of its performative qualities according to load-carrying capacity and directionality.
The chief engineering challenge facing the ribs was the large span over the public spaces; the café and restaurant. This was solved by turning the build-up of the elements inside out, exposing the diagonal layers which then could extend into the room at a higher level and form a unique spatial geometry for the public rooms. At the same time, the procedure revealed unique construction principle of Holz100 and the wooden materials very intrinsic qualities.

















