
Etseib C’ Departamental Building
YEAR
2008
LOCATION
Barcelona, Spain
CATEGORY
Higher Education
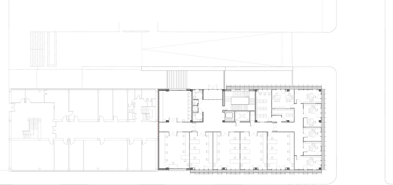
The project concerns de construction of a new departmental building (C’) for the Industrial Engineering School of Barcelona (ETSEIB) of the Polytechnic University of Catalonia (UPC). The site is located in the intersection of Pau Gargallo and Pacual Vila Streets, in the ancient site of the nuclear reactor “Argos” serving academic purposes.
The new building adds its volume to the small constructions that set the elevation of Pau Gargallo Street: it sets the end of those small pavilions continuing the brick work basement along the street.
The project reinforces that concept with a single volume defined by a lightweight enclosure of aluminium and glass panels. The façade is made with a panel system that can be adapted to the different requests of the program.
A light service footbridge with “brise-soleil” helps the solar control and allows glass cleaning as it gives unity to the whole building.
The building is structurally organized in two bays of 10 and 6 meters with concrete pillars and concrete slabs. The bay of 10 meter contains the central corridor that connects with the neighbour building.
In the 6 meters bay we located the vertical communication hub, with the stairs, the elevator, the toilets and an installation yard.
That distribution helps us to satisfy the requirements for fire prevention and dispose a centralized access minimizing the routes.
The pillars are located in the façade having a greater flexibility in the distribution.
The building has two main accesses. The first is in the lowest level at Pascual Vila Street. The other –located on the north façade with an access ramp to main ETSEIB building– gives access to the upper floor, which is really the ground floor level according to the rest of the complex.














