
Farm On The Wamberg
ARCHITECTS
Hilberink Bosch Architecten
PHOTOGRSPHS
René De Wit
AREA
492.0 m2
YEAR
2008
CATEGORY
Houses
Text description provided by architect.
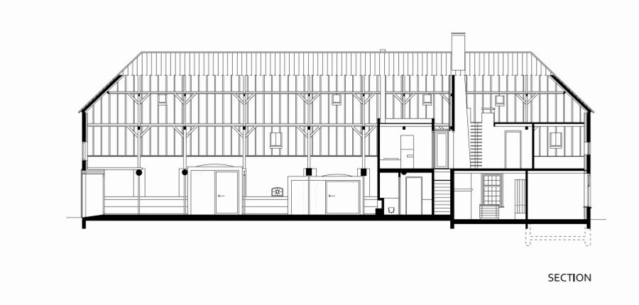
A redundant farm building in Berlicum has been transformed into a large family home and an architectural office.
The farm, a typical ‘langgevel’ farm where all the entrances and orientation are on the longest façade of the farm, belongs to the estate ‘De Wamberg’ and was built in 1893.
The former house, situated at the front of the volume, is transformed and adjusted to modern requirements.
Much effort has been spend to make all alterations look very natural. The biggest change is made on the upper floors where new (bed)rooms have been created, adjoining a great hall.
The former barn, which used to house cows, is in use as the office of HILBERINKBOSCH architects. The large double height space has been kept open so the roof and the old timber construction are kept in sight.
A new wooden volume marks the transition between the house and the office. This new volume houses all the new functions which where not present in an old farm such as toilets, bathroom and a geothermal heating and hot water system.
During daytime the old barn doors are opened. Behind these doors and way bigger than the original openings, steel sliding doors have been placed.
Thus having parts of the old plaster visible. At night when the last employee goes homewards, the barn doors close again and the building goes to sleep.
Form, material and colour arises from this concept, representing the poetry of life. The different aspects of study slowly grow into an actual building.























