
Tabuaço Municipal Pools
YEAR
2008
LOCATION
Tabuaço, Portugal
CATEGORY
Swimming Pool
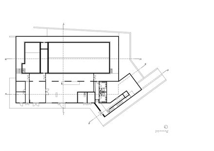
Text description provided by architect.
The building is located in an area of difficult geological, topographical and accessibility conditions.
The choice of this location, near the city park, the outdoor swimming pools, the sports hall and schools, aims to create a center of educational activities capable of producing a momentum for the consolidation and upgrading of the urban environment of this part of the city.
For the viability of the terrain, it was necessary to design a new route that by continuing the existing fabric, will fix part of the urban expansion around the existing core.
The first sketches, as opposed to a distortion of the slopes by the existing construction, pointed to the need to create a building integrated, simple, monolithic, 'snapped' to the slope and totally oriented to the landscape.
Developing the project on this concept, the design showed two possible "compositions" - the axis of access and entry to the building that, dipping trough the ramp or the stairs, still offers a perspective of a rural landscape; and the axis of the valley, parallel to the slope that opens on a vast landscape, seen through the building from the access square and trough the pool’s main building.





























