
S.Oliver Headquarters
YEAR
2008
LOCATION
Rottendorf, Germany
CATEGORY
Office Buildings
Text description provided by architect.
The building’s restrained formal language serves as a projection surface for the s.
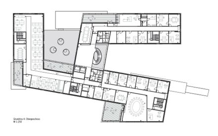
The vertical access via a spectacular oval staircase with open galleries is the focal point of the building.
Colored furniture serves as an eye catcher and highlights the informal meeting points.
In line with the way the building is structured, different finishes such as stone, wood and fabric are used.

T +49 531 680130 F +49 531 6801356
KSP Engel GmbH
Frankfurter Str. 2, 38122 Braunschweig, Germany












