Bionand Building
YEAR
2008
LOCATION
Spain
CATEGORY
Headquarter
Text description provided by architect.
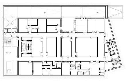
The Bionand building is a basically horizontal structure, with a triple centreline scheme, locating the laboratories in the facades and the support spaces and investigators in the central zone, lit up by the large cavities in the patio-skylights.
These elements play a central role in this project, introducing necessary space in an intentionally dense structure, bringing natural lighting to every single corner of the building, an essential aspect in the perception and comfort of the general areas.
The matrix scheme with double corridor allows optimum use of resources as well as versatility in the use of the research and support facilities.
It is the ideal scheme for functional structures that require changes without affecting the architectural elements.
For this reason, we decided on a completely flexible organisation of the laboratories, continuing on from each other, simply separated by a glass panel.
The location of the facilities play an important role in the versatility of this configuration, which guarantees that the buidling serves as a flexible container for any kind of work that one wishes to implement.
The building consists of 4 floors, basement, semi-basement, ground floor and first floor, with an important installation area on the roof area.
The research facilities are developed on the top two floors, leaving the semi-basement for support and service zones and the basement for parking.
Two strategically placed core areas allow the separation of uses (general and services).
With regard to the materials, the building combines Corten steel in core areas with perforated aluminium sheets, which gives it a look of solidity without undermining the visual permeability from within.
The building has a gross floor area of 6.500 m2.With regard to the materials, the building combines Corten steel in core areas with perforated aluminium sheets.





































