
Sanlitun South
YEAR
2008
LOCATION
Beijing, China
CATEGORY
Restaurant, Mixed Use Architecture, Offices
Text description provided by architect.
A retail complex, with master plan by Hong Kong-based The Oval Partnership, is organized like a medieval village with a dense fabric of narrow alleys, low-rise buildings, elevated walkways and bridges connecting all levels.
LOT-EK developed the north-east section of the “village”, comprised of three separate and interconnected buildings, to be dedicated to retail, restaurants and event spaces. Other architecture firms commissioned to develop the other buildings include KKAA/Kengo Kuma & Associates, SHoP Architects and Sako Architects.
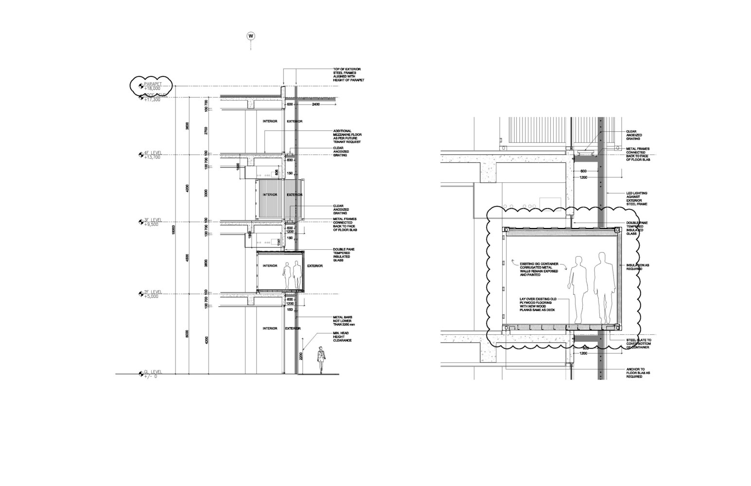
LOT-EK concept is centered on the old typology of the Chinese ‘HUTONG’, the internal urban alley animated by small retail, functioning as multi-level, open-air circulation. In each alley, a rhythmic system of scaffolding-like metal frames is wedged between the buildings, adapting to the varying width of the alley’s cross-section.
The scaffolding-like frames are connected along the side of the buildings by a random system of horizontal metal rods that function as railing and brise-soleil, defining loggias on the upper levels and generating a tunnel like perspective within the alleys.
The rhythm of the structure is based on the width of ISO shipping containers (8 feet) which are inserted randomly into the facades of the building and jut out into the alleys.
At the ground level, the containers function as canopies that hover over the retail stores entrances and house display or other small functions on the interior.
At the upper floors the containers are pierced and skewered by the horizontal circulation functioning as entrances to the retail stores and as display windows along the loggias. At every level the containers function as large three-dimensional graphic objects layered with signage and logos.
Orange mesh, also pierced by shipping containers, wraps the external perimeter of the entire north-east section adding privacy and sun refraction along the outer façades.





















