ARCHITECTS
Marcelo Sarovic, Jeannette Plaut
BUILDING CONTRACTOR
Patricio Nuñez
STRUCTURAL ENGINEER
Patricio Bertholet
AREA
925.0 m²
PHOTOGRAPHS
Antonio Urzúa
COLLABORATOR ARCHITECTS
Paul Reid, Paula Henriquez
CATEGORY
Houses
YEAR
2008
LOCATION
Talagante, Chile
Text description provided by architect.
Commissioned to design a home on a private golf course, the house is simultaneously an enclosed farm plot, like the French term clos (i.e. organized around a geometric structure that gives it unity and closure), and at the same time an object that is sensitive to the orientation of the sun, views and the horizon.
The architects chose exposed concrete as the main material, with the idea of expressing the thickness of the slabs using a system of beams that is left confined. From this system arise elements that are separated from the ground and subject the concrete to a plastic dimension that operates from a formal tension.
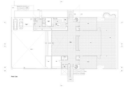
From a construction perspective, the work is structured into a system of reinforced concrete walls and slabs where the condition ofclos is determined by the layout of the first-floor walls and the point where they meet the ground.
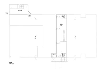
This level contains the shared spaces, while the bedrooms are on the second floor and the basement houses a wine cellar that maintains a consistent temperature throughout the year. A sky light crosses the three levels.
Concrete pre-mixed with white pigments was used for all exterior walls to give a more illuminated finish, while the interior surfaces were plastered and painted.
A system of metal formworks with phenolic panels was utilized on the exterior exposed surfaces and metal in the interior. Sheets of treated marine plywood were used for the curved formworks. Recycled wood from large wine barrels, stained with use, was also used.
The lateral spiral staircase that stretches from the basement to the second floor is designed as concrete solids that are perforated and allow directed light to shine through.





























