LOCATION
Alpl, Austria
CATEGORY
Houses
YEAR
2008
Text description provided by architect.
The estate and the farmhouse with adjacent forest have been in the family’s property for a long time before the decision was made to construct a summer residence.
The actual residential building of the farm was too small by the size for the family. The barn in the close proximity was therefor large enough.
The barn was totally refurbished, mostly even disassembled for the most parts and then gently rebuilted. It was important for the revitalisation to have a historically true completion, but new integrations are recognizable.
First of all, the panorama windows with his nurglas quality give immediately not the sensation to be a part of an agricultural use, without to be out of place.
The windows were integrated at the same places as the old operable elements of the ventilation.
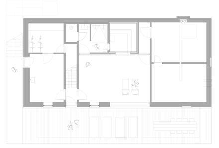
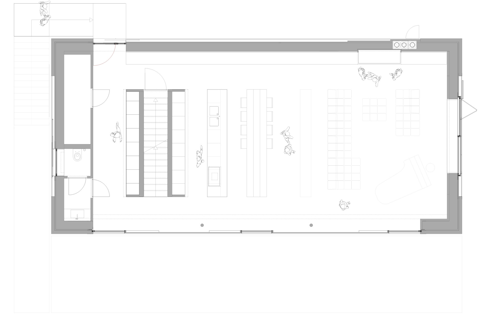
The functions inside were defined as described: the ground floor in front with the terrace serves as a Spa area with sauna, recreation and fitness room.
The first floor was defined as a spacious living-dining room with a fireplace and a great panorama view over the valley and mountains. The attic floor contains four bedrooms and three bathrooms.
The selection of natural materials like old wooden floors and natural stone wall was complement with high-polish varnished surfaces to generate an intimacy and tension feeling.






























