
Architectural Office In Martinez
ARCHITECTS
Alric Galindez Arquitectos
AREA
245.0 m2
YEAR
2008
LOCATION
Martínez, Argentina
CATEGORY
Offices
Text description provided by architect.
After years of work, we decided to face the construction of our own office.
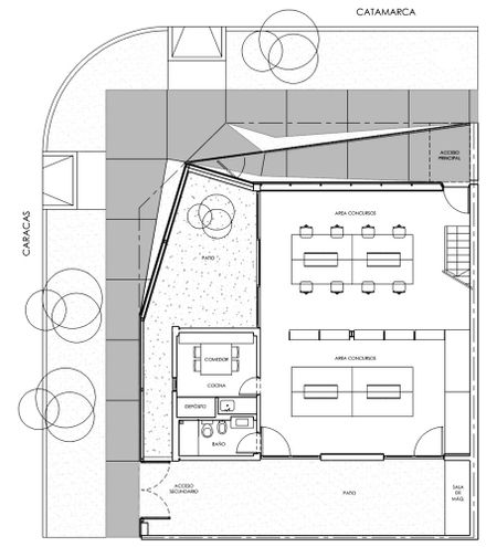
Situated on a corner defined by Catamarca and Caracas streets, in Martinez, Buenos Aires. A zone that is actually transforming and developing, from being an area of horse keeping studs, to become a commercial spot, surrounded by offices and modern restaurants, right in the heart of San Isidro.
The code establishes maximum heights and retirements to be followed. Due to its corner situation, we decided that the building should behave this way, and created a volume from iron sheets, with several displacements and situations towards the corner.
The roof slightly rises to allow the sunlight in, the upper plan terrace tenses towards the corner, and the lower plan opens one of the faces, generating a private patio.
We decided to work the channeled sheets as the expressive material, as a proper way to get the sensation of the fabric or workshop, and a quick and not expensive construction.
Using this specific material made us think on how to work with it, how we could show the way the "tin" was beginning to open itself, and how the completions and details were going to be managed.
Like this, the corner situation intended to be resolved, and emphasized with the "continuous skin" concept.
A fluid and flexible work space was the main priority, to support various layouts, being important here, the decision of placing the service areas aside.
We considered an important theme, the search of a place coherent with the idea of work and profession we have, considering outside spaces, as working and reflection areas too.
A special treatment received the entrance path, understood as a unique piece that generates the access and its white roof.
This was also possible on the dividing wall, because the low bordering house allowed us to intervene in a fine and slight way, introducing stretch light lines, with different and changing night and day effects.


























