
GreenPix: Zero Energy Media Wall
GREENPIX:
ZERO ENERGY MEDIA WALL
Simone Giostra & Partners
ARCHITECTS
Simone Giostra & Partners
YEAR
2008
LOCATION
Beijing, China
CATEGORY
Installation
Text description provided by architect.
The 2008 Olympic Games aren´t just a gathering of athletes, it´s also a showcase of the most innovative buildings and technologies like GreenPIX, the Zero Energy Media Wall by Simone Giostra & Partners and ARUP, pictured above.
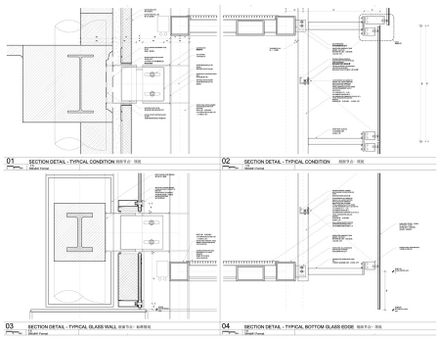
This curtain wall covers the front of the Xicui entertainment complex in Beijing, near the site of the 2008 Olympic Games.
It features the worlds largest color LED display, powered by a photovoltaic system integrated into the glass curtain wall.
This Media Wall will showcase a selection of specially commissioned video installations and live performances by artists from China, Europe and the US, starting in May. Pictures, construction progress, diagrams and videos after the break.























