Slide House
ARCHITECTS
Level Architects
YEAR
2009
LOCATION
Japan
CATEGORY
Houses
Text description provided by architect.
Imagine you were a kid living in a house like this. Everyday would be a party, don’t you think?
What do you do when your clients, a couple with three children, ask for a house so special that the children will cherish the memory of it for the rest of their lives'? You design a house with the most playful element imaginable, a slide that spans three floors.
Rather than placing the slide next to the staircase or installing it in a playroom, they boldly made it an integral part of the house.
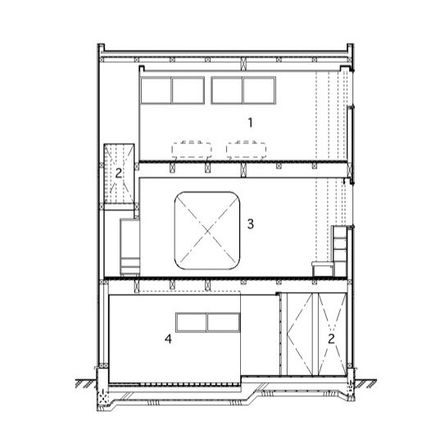
After entering the ground-floor entrance to the house, you ascend the staircase to the right, along the wall, and climb past the first floor to the second story.
The trip back down takes seconds when you use the slide, which runs along the entire inner perimeter of the building.
We spent a lot of time trying to figure out the right angle of the slope, best materials for the slide and the ideal construction method of the curved corners where the wall had to be reinforced.
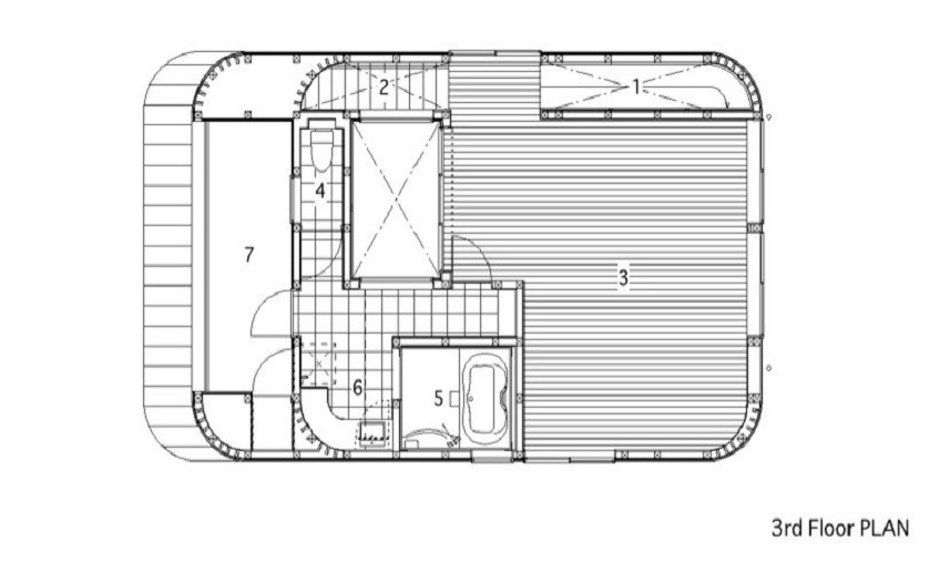
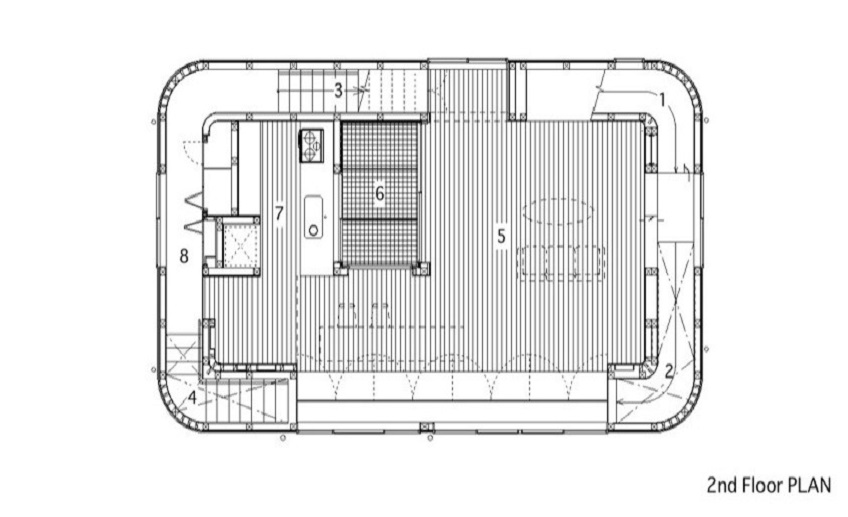
The four corners of the building are rounded. The first floor, which accommodates a living-dining area and includes the kitchen, is surrounded by the stairs and the slide.
A 6m-long build-in sofa creates a sense of unity as light filters in from the courtyard through gratings. The bedroom on the second floor has no partitioning and is for everyone.
Rounded couners cast soft shadows inside, while giving the building an appealing look outside.
A month after completing the project, we visited the house. The children's biggest joy was trying to go up the slide instead of down. What better way to incorporate a space for play into family life?


























