
Booker T. Washington High School for the Performing and Visual Arts
BOOKER T. WASHINGTON HIGH SCHOOL FOR THE PERFORMING AND VISUAL ARTS
Allied Works Architecture
CATEGORY
High School
ARCHITECTS
Allied Works Architecture
AREA
18766.3 ft2
PHOTOGRAPHS
Jeremy Bittermann , Vicky Sambunaris
LOCATION
Dallas, United States
AREA
18766.3 ft2
Text description provided by architect.
Booker T. Washington High School for the Performing and Visual Arts is a building that supports the production of young artists. Where the school excels in the academic preparation of its students, it aspires to forge rigorous, creative thinkers and makers in spaces that inspire ideas and provoke experimentation and production.
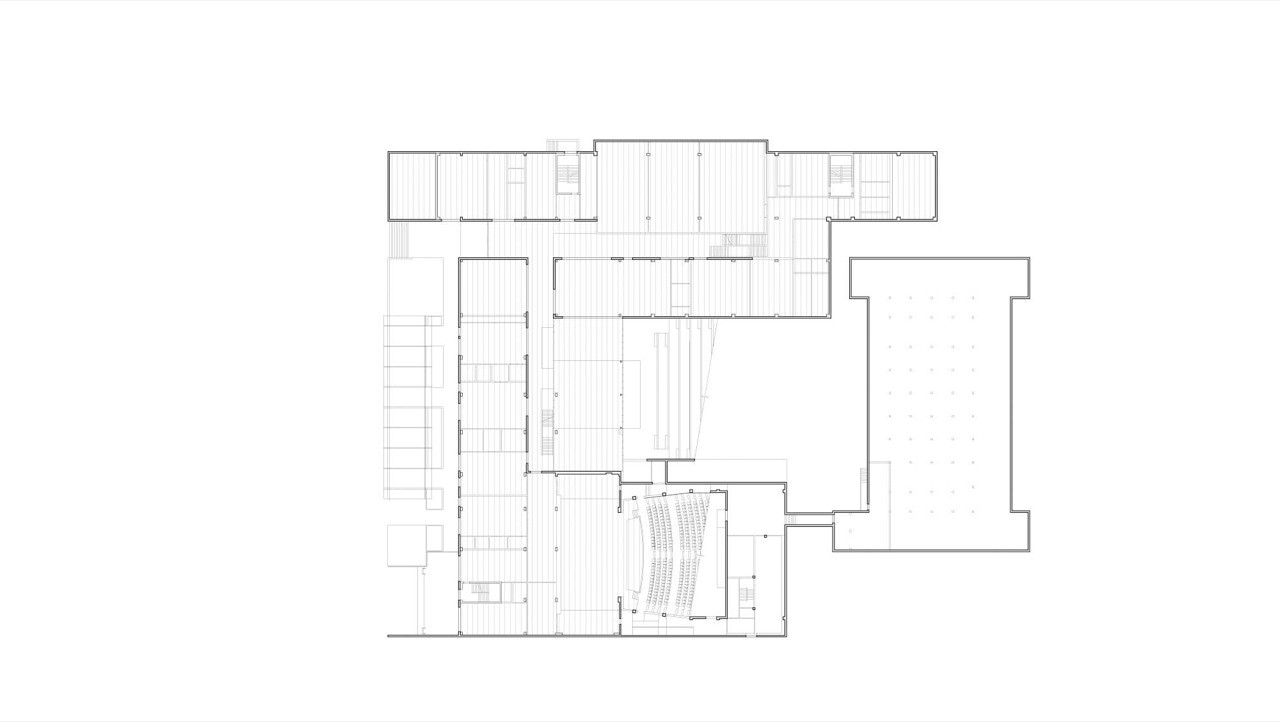
The 200,000 sqf expansion to the Booker T. Washington High School for the Performing and Visual Arts, designed by Allied Works Architecture, includes areas for the core programs of music, dance, theater, and visual arts, as well as spaces for assembly and traditional academic instruction.
The expansion is organized as simple loft spaces of concrete, brick and glass that rotate around and extend outward from an open-air central amphitheater, known to students as the ‘Green Room’. The program clusters are contained in distinct volumes that provide individual identity yet overlap adjacent disciplines in plan and section. Project description, images and drawings following the break.
Located in the Arts District in central Dallas, the school has a history of firsts: as Dallas’ first all-black high school when it opened in 1922, then in 1974 as Dallas’ first public arts magnet high school. In direct contrast to the surrounding cultural institutions, important buildings that preserve and present icons of the visual and performing arts, the new school manifests the qualities of creative industry: workshop, forge, studio and factory. The forms are elemental, the space and materials – raw and visceral.
In this context, the building has two charges: to compress and hold the creative energy of the school, while simultaneously connecting to the surrounding community with the production and presentation of new ideas and possibilities. The community is invited to share in the life and vitality of the students with glimpses into workshops and studios and through various presentation venues, yet the students feel protected.
The architecture nurtures the individual creative pursuit while inspiring the students to send their work out into the world. It is a place where art, artists and ideas are made, a place of genesis in work and life.
New performance spaces are contained throughout the building, inviting the public to share in the energy of the school. These include an experimental ‘Black Box’ Theater held by the wings of the existing 1922 building, and the 475-seat Montgomery Arts Theater, a full proscenium theater that serves as a dramatic new public gateway from the Arts District.
From within, the life of the school is revealed in two four-story atriums that provide circulation, light and views. Substantial new outdoor areas create spaces of interaction and protection from the elements. Overall, the building strikes a balance between porosity and density, openness and introspection, in order that students are able to create freely and take risks with their art while still being engaged with their city, their audience, and the surrounding Arts District.
Entering the building one is instantly engaged in movement, sound and activity. The four story building pinwheels around the outdoor performance space. It is an urban school, vertical and condensed.
The artistic disciplines are encouraged to intermingle by their room placement and through the myriad and diverse spaces to reflect, converse, practice and perform.
The building is filled with the sights and sounds of production. Music comes from every corner, art hangs from the walls and balconies, dancers stretch on the railings and actors rehearse their lines in the halls.
The building provides raw classrooms and studios for practice and production, while the corridors, atria and courtyards support the theater of collective movement and interaction. There are also infinite possibilities to find space for oneself; stairs, edges and landings to sit and write, practice and reflect.















