ARCHITECTS
Andy Rahman Architect
PHOTOGRAPHS
Indiga Ikhlasani
AREA
180.0 m2
YEAR
2008
LOCATION
Surabaya, Indonesia
CATEGORY
Houses
Text description provided by architect.
Ira residence is a typical urban contemporary style house. Looks provocative is the spirit of the owner of a dynamic lifestyle and love with new things.
Located in a residential area in East Surabaya, this house manages to look attractive in the middle of the Mediterranean-style residential neighborhood.
The owners wanted a modern house can arise among their neighborhood because they are bored with Mediterranean-style home design.
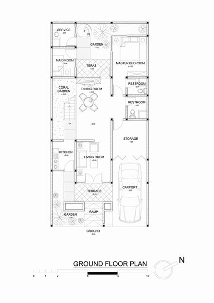
The House is oriented towards to the East, where the wind blows from, East to West, this is our attempt as a potential entry into the design of this House.
Formation of three-dimensional on the front facade serves as a 'wind catcher', so the House even without air conditioning will remain keep cool temperature.
Because of the wind catcher is able to work optimally, so the air circulation inside house, can be optimal.
We design the arrangement of space by optimizing lighting and air circulation. So this house could live comfortably for the occupants.













