Gunnar's House
Huus Og Heim Arkitektur
ARCHITECTS
Huus Og Heim Arkitektur
AREA
85.0 m2
YEAR
2008
LOCATION
OS, Norway
CATEGORY
Houses
Text description provided by architect.
The house is built in a residential area in the forest in Os i Østerdalen in Norway. The client wanted to preserve as much of the site's natural character as possible and build a house of wood, based on the traditional 6" timber frame construction.
On the basis of some fixed constraints, such as the level and size of the basement, the terrain falling to the south and that the developer wanted proximity to the forest, the building cantilevers beyond the foundation of both gable walls.
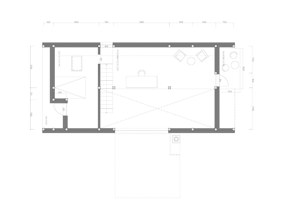
Rooms are organized as a result of the timber frame construction, in a grid of 3x3 meter. This provides functional bedrooms, bathroom, kitchen and living room area. Parts of the main room is retained with double height, with the second floor as an open mezzanine.
Windows are gathered in larger fields to the south and west for optimum view and sun. Towards the east, the windows are designed as narrow openings from floor to ceiling over several levels. This let you sit inside the main room and see the trees in their full height, from trunk to crown.
The dry climate and the use of pine in the facade makes it possible to leave the house untreated. The covered outdoor space gives associations to traditional galleries and storehouses, and act as tiny living space over several levels. From here you can experience the forest up close.












